Country House Plans - 3 Bed, 2 Bath, 1772 Sq Ft | Plan 5-1356 | Monster House Plans

New plans now available on

dreambook-head-logo See all available plans
SHARE ON

All plans are copyrighted by the individual designer.

Photographs may reflect custom changes that were not included in the original design.

Design Comments

"This designer does not include electrical layouts with their designs."
"Allow up to 15 business days for delivery."

3 Bedroom, 2 Bath Country House Plan #5-1356

Plan Purchase Options

Price: $0

Please uncheck first "Purchase MML without any plan package" under MONSTER MATERIAL LIST

Optional Add-Ons
guaranted-label.png

Best Price Guarantee

*Payment Plans Now
Available Through

img See if you qualify

Floor Plans

What's included?
  • Main Floor

    Reverse

    Clicking the Reverse button does not mean you are ordering your plan reversed. It is for visualization purposes only. You may reverse the plan by ordering under “Optional Add-ons”.

    Main Floor Plan: 5-1356
  • Upper/Second Floor

    Reverse

    Clicking the Reverse button does not mean you are ordering your plan reversed. It is for visualization purposes only. You may reverse the plan by ordering under “Optional Add-ons”.

    Upper/Second Floor Plan: 5-1356
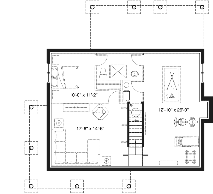
  • Lower Floor

    Reverse

    Clicking the Reverse button does not mean you are ordering your plan reversed. It is for visualization purposes only. You may reverse the plan by ordering under “Optional Add-ons”.

    Lower Floor Plan: 5-1356

Rear/Alternate Elevations

  • Rear Elevation

    Reverse

    Clicking the Reverse button does not mean you are ordering your plan reversed. It is for visualization purposes only. You may reverse the plan by ordering under “Optional Add-ons”.

    Rear Elevation Plan: 5-1356

House Plan Highlights

ul liBeautiful country style home with modern rustic touches! li liCovered wraparound porch on front and left elevations.li liRear covered deck with enough room to add an outdoor kitchen.li liTwo story entrace with a skylight and coat closet. li liKitchen with large pantry planning desk and good size kitchen island.li liHalf bath and laundry area located near kitchen.li liOpen kitchen dining room and living room concept with a fireplace.li liSlope ceiling on second floor.li liMaster bedroom with fireplace large walk-in closet and located near family bathroom.li liFamily bathroom with double vanities.li liEnclosed showerbath and toilet for more privacy.li liTwo secondary bedrooms with closet.li liLinen closet close to bathroom.li liUnfinished daylight basement.li ulul li

This floor plan is found in our Country house plans section

Full Specs and Features

icon Total Living Area

  • Main floor: 1020
  • Upper floor: 752
  • Basement: 1020
  • Porches: 413
  • Total Finished Sq. Ft.: 1772

icon Beds/Baths

  • Bedrooms: 3
  • Full Baths: 2
  • Half Baths: 1

icon Levels

  • 2 stories

Dimension

  • Width: 36' 0"
  • Depth: 28' 0"
  • Height: 27' 4"

Roof slope

  • 12:12 (primary)

Walls (exterior)

  • 2"x6"

Ceiling heights

  • 8' (Main)
    8' (Upper)
    8' (Lower)

Exterior Finish

  • Siding

Roof Framing

  • Truss

Foundation Options

  • Basement Standard With Plan
  • Walk-out basement $450
  • Crawlspace $450

How Much Will It Cost To Build?

Wondering what it will actually cost to bring this home to life? Get an instant, customized estimate based on your chosen plan and location.

GET MY COST TO BUILD ESTIMATE

Modify This Plan

"Need Content here about modifying your plan"

Customize This Plan

House Plan Features

Suited for a narrow lot
Upstairs Master
Island Walk-in pantry Eating bar
Main Floor laundry Open concept floor plan No formal living/dining Unfinished/future space
Covered front porch Covered rear porch Grilling porch/outdoor kitchen
Photos Available

Reviews

How Much Will It Cost To Build?

Wondering what it will actually cost to bring this home to life? Get an instant, customized estimate based on your chosen plan and location.

GET MY COST TO BUILD ESTIMATE

Modify This Plan

Need changes to the layout or features? Our team can modify any plan to match your vision.

Customize This Plan

House Plan Features

Suited for a narrow lot
Upstairs Master
Island Walk-in pantry Eating bar
Main Floor laundry Open concept floor plan No formal living/dining Unfinished/future space
Covered front porch Covered rear porch Grilling porch/outdoor kitchen
Photos Available

Need Some Quick Tips Or Advice?

We want to help you design the house of your dreams as best as we can. If you can't find the answers you're looking for here, get in touch with our licensed architect or a designer!