Country House Plans - 3 Bed, 2 Bath, 2307 Sq Ft | Plan 2-237 | Monster House Plans

New plans now available on

dreambook-head-logo See all available plans
SHARE ON

All plans are copyrighted by the individual designer.

Photographs may reflect custom changes that were not included in the original design.

3 Bedroom, 2 Bath Country House Plan #2-237

Plan Purchase Options

Price: $0

Please uncheck first "Purchase MML without any plan package" under MONSTER MATERIAL LIST

Optional Add-Ons
guaranted-label.png

Best Price Guarantee

*Payment Plans Now
Available Through

img See if you qualify

Floor Plans

What's included?
  • Main Floor

    Reverse

    Clicking the Reverse button does not mean you are ordering your plan reversed. It is for visualization purposes only. You may reverse the plan by ordering under “Optional Add-ons”.

    Main Floor Plan: 2-237
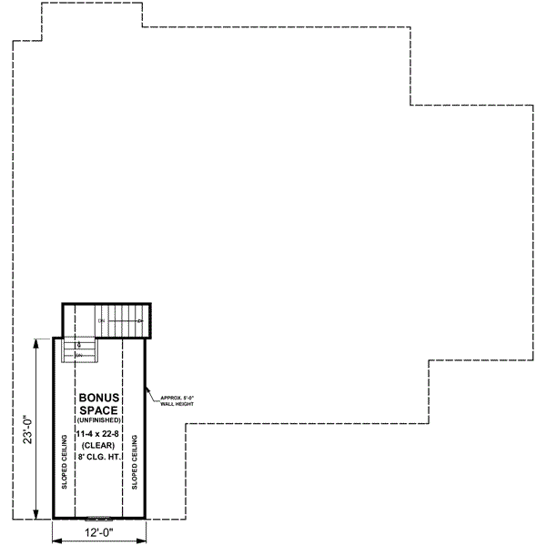
  • Bonus Floor

    Reverse

    Clicking the Reverse button does not mean you are ordering your plan reversed. It is for visualization purposes only. You may reverse the plan by ordering under “Optional Add-ons”.

    Bonus Floor Plan: 2-237

Rear/Alternate Elevations

  • Rear Elevation

    Reverse

    Clicking the Reverse button does not mean you are ordering your plan reversed. It is for visualization purposes only. You may reverse the plan by ordering under “Optional Add-ons”.

    Rear Elevation Plan: 2-237

House Plan Highlights

This home features a split-bedroom floorplan with wonderful open spaces. The expansive and well-appointed master suite includes trayed ceiling, large his and her walk-in closets, an oversized jet tub, separate shower, compartmentalized toilet, plenty of vanity space, and the much-requested sitting area / bonus / nursery space. Need space options for the future? No problem. Bonus space area over garage can be built when needed. Vaulted ceiling in the expansive great room with popular gas log fireplace. This home truly has the features that your family wants!

This floor plan is found in our Country house plans section

Full Specs and Features

icon Total Living Area

  • Main floor: 2307
  • Bonus: 294
  • Porches: 450
  • Total Finished Sq. Ft.: 2307

icon Beds/Baths

  • Bedrooms: 3
  • Full Baths: 2
  • Half Baths: 1

icon Garage

  • Garage: 648
  • Garage Stalls: 2

icon Levels

  • 1 story

Dimension

  • Width: 66' 4"
  • Depth: 65' 10"
  • Height: 28' 3"

Roof slope

  • 10:12 (primary)
  • 12:12 (secondary)

Walls (exterior)

  • 2"x4"

Ceiling heights

  • 9' (Main)

Foundation Options

  • Basement Standard With Plan
  • Crawlspace Standard With Plan
  • Slab Standard With Plan

How Much Will It Cost To Build?

Wondering what it will actually cost to bring this home to life? Get an instant, customized estimate based on your chosen plan and location.

GET MY COST TO BUILD ESTIMATE

Modify This Plan

"Need Content here about modifying your plan"

Customize This Plan

House Plan Features

Suited for corner lots
Split bedrooms
Eating bar Nook / breakfast
Bonus room Great room Formal dining room Den / office / computer Flex Space
Covered front porch Covered rear porch
Vaulted/Volume/Dramatic ceilings
Side-entry garage

Reviews

How Much Will It Cost To Build?

Wondering what it will actually cost to bring this home to life? Get an instant, customized estimate based on your chosen plan and location.

GET MY COST TO BUILD ESTIMATE

Modify This Plan

Need changes to the layout or features? Our team can modify any plan to match your vision.

Customize This Plan

House Plan Features

Suited for corner lots
Split bedrooms
Eating bar Nook / breakfast
Bonus room Great room Formal dining room Den / office / computer Flex Space
Covered front porch Covered rear porch
Vaulted/Volume/Dramatic ceilings
Side-entry garage

Need Some Quick Tips Or Advice?

We want to help you design the house of your dreams as best as we can. If you can't find the answers you're looking for here, get in touch with our licensed architect or a designer!