Craftsman House Plans - 2 Bed, 1 Bath, 1317 Sq Ft | Plan 5-1330 | Monster House Plans

New plans now available on

dreambook-head-logo See all available plans
SHARE ON

All plans are copyrighted by the individual designer.

Photographs may reflect custom changes that were not included in the original design.

Design Comments

"This designer does not include electrical layouts with their designs."
"Allow up to 15 business days for delivery."

2 Bedroom, 1 Bath Craftsman House Plan #5-1330

Plan Purchase Options

Price: $0

Please uncheck first "Purchase MML without any plan package" under MONSTER MATERIAL LIST

Optional Add-Ons
guaranted-label.png

Best Price Guarantee

*Payment Plans Now
Available Through

img See if you qualify

Floor Plans

What's included?
  • Main Floor

    Reverse

    Clicking the Reverse button does not mean you are ordering your plan reversed. It is for visualization purposes only. You may reverse the plan by ordering under “Optional Add-ons”.

    Main Floor Plan: 5-1330
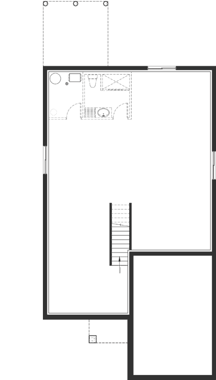
  • Lower Floor

    Reverse

    Clicking the Reverse button does not mean you are ordering your plan reversed. It is for visualization purposes only. You may reverse the plan by ordering under “Optional Add-ons”.

    Lower Floor Plan: 5-1330

Rear/Alternate Elevations

  • Rear Elevation

    Reverse

    Clicking the Reverse button does not mean you are ordering your plan reversed. It is for visualization purposes only. You may reverse the plan by ordering under “Optional Add-ons”.

    Rear Elevation Plan: 5-1330

House Plan Highlights

ul liCountry rustic one-story home with garage.li liIdeal layout for narrow lot.li liEntrance hall with coat closet and access to garage.li liComputer corner or mini-playroom for children.li liOpen kitchen dining and family room concept.li liKitchen with island and access to outdoor rear balcony.li liLaundry room conveniently located near kitchen.li liTwo good size bedrooms with large closet.li liSpacious family bathroom with dual vanities and large shower stall and a separate bath.li ul

This floor plan is found in our Craftsman house plans section

Full Specs and Features

icon Total Living Area

  • Main floor: 1317
  • Basement: 1317
  • Porches: 32
  • Total Finished Sq. Ft.: 1317

icon Beds/Baths

  • Bedrooms: 2
  • Full Baths: 1

icon Garage

  • Garage: 365
  • Garage Stalls: 1

icon Levels

  • 1 story

Dimension

  • Width: 32' 0"
  • Depth: 58' 0"
  • Height: 21' 8"

Roof slope

  • 8:12 (primary)

Walls (exterior)

  • 2"x6"

Ceiling heights

  • 8' (Main)

Roof Framing

  • Truss

Foundation Options

  • Basement Standard With Plan
  • Crawlspace $450

How Much Will It Cost To Build?

Wondering what it will actually cost to bring this home to life? Get an instant, customized estimate based on your chosen plan and location.

GET MY COST TO BUILD ESTIMATE

Modify This Plan

"Need Content here about modifying your plan"

Customize This Plan

House Plan Features

Suited for a narrow lot
Island Eating bar
Open concept floor plan No formal living/dining Unfinished/future space
Photos Available

Reviews

How Much Will It Cost To Build?

Wondering what it will actually cost to bring this home to life? Get an instant, customized estimate based on your chosen plan and location.

GET MY COST TO BUILD ESTIMATE

Modify This Plan

Need changes to the layout or features? Our team can modify any plan to match your vision.

Customize This Plan

House Plan Features

Suited for a narrow lot
Island Eating bar
Open concept floor plan No formal living/dining Unfinished/future space
Photos Available

Need Some Quick Tips Or Advice?

We want to help you design the house of your dreams as best as we can. If you can't find the answers you're looking for here, get in touch with our licensed architect or a designer!