Craftsman House Plans - 3 Bed, 2 Bath, 1816 Sq Ft | Plan 2-369 | Monster House Plans

New plans now available on

dreambook-head-logo See all available plans
SHARE ON

All plans are copyrighted by the individual designer.

Photographs may reflect custom changes that were not included in the original design.

Design Comments

Slab & Crawlspace version is 2-310

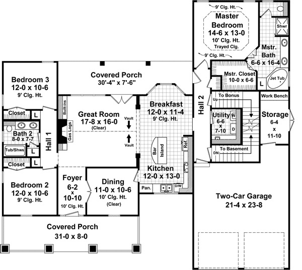
3 Bedroom, 2 Bath Craftsman House Plan #2-369

Plan Purchase Options

Price: $0

Please uncheck first "Purchase MML without any plan package" under MONSTER MATERIAL LIST

Optional Add-Ons
guaranted-label.png

Best Price Guarantee

*Payment Plans Now
Available Through

img See if you qualify

Floor Plans

What's included?
  • Main Floor

    Reverse

    Clicking the Reverse button does not mean you are ordering your plan reversed. It is for visualization purposes only. You may reverse the plan by ordering under “Optional Add-ons”.

    Main Floor Plan: 2-369
  • Bonus Floor

    Reverse

    Clicking the Reverse button does not mean you are ordering your plan reversed. It is for visualization purposes only. You may reverse the plan by ordering under “Optional Add-ons”.

    Bonus Floor Plan: 2-369

Rear/Alternate Elevations

  • Rear Elevation

    Reverse

    Clicking the Reverse button does not mean you are ordering your plan reversed. It is for visualization purposes only. You may reverse the plan by ordering under “Optional Add-ons”.

    Rear Elevation Plan: 2-369

House Plan Highlights

Looking for the house that has it all? Then look no further. This beautiful Craftsman design features all the things that make a house a home. A breakfast area and raised bar all provide spaces for those family meals with close access to the fully equipped kitchen. The kitchen is also easily accessible from the separate formal dining room. The great room includes gas logs, a vaulted ceiling, and beautiful views to the covered rear porch beyond. The master bedroom also features trayed ceilings, while the master bathroom leaves nothing to be desired. The garage features a large storage area that can be used as a workshop. The bonus room provides space for future expansion or for additional storage. This is the perfect home for you and your family!

This floor plan is found in our Craftsman house plans section

Full Specs and Features

icon Total Living Area

  • Main floor: 1816
  • Bonus: 113
  • Porches: 459
  • Total Finished Sq. Ft.: 1816

icon Beds/Baths

  • Bedrooms: 3
  • Full Baths: 2

icon Garage

  • Garage: 996
  • Garage Stalls: 2

icon Levels

  • 1 story

Dimension

  • Width: 65' 0"
  • Depth: 60' 8"
  • Height: 21' 7"

Roof slope

  • 8:12 (primary)
  • 12:12 (secondary)

Walls (exterior)

  • 2"x4"

Ceiling heights

  • 9' (Upper)

Foundation Options

  • Basement Standard With Plan

How Much Will It Cost To Build?

Wondering what it will actually cost to bring this home to life? Get an instant, customized estimate based on your chosen plan and location.

GET MY COST TO BUILD ESTIMATE

Modify This Plan

"Need Content here about modifying your plan"

Customize This Plan

House Plan Features

Suited for a back view
Split bedrooms
Island Eating bar Nook / breakfast
Bonus room Great room Open concept floor plan Formal dining room Unfinished/future space
Covered front porch Covered rear porch
Photos Available

Reviews

How Much Will It Cost To Build?

Wondering what it will actually cost to bring this home to life? Get an instant, customized estimate based on your chosen plan and location.

GET MY COST TO BUILD ESTIMATE

Modify This Plan

Need changes to the layout or features? Our team can modify any plan to match your vision.

Customize This Plan

House Plan Features

Suited for a back view
Split bedrooms
Island Eating bar Nook / breakfast
Bonus room Great room Open concept floor plan Formal dining room Unfinished/future space
Covered front porch Covered rear porch
Photos Available

Need Some Quick Tips Or Advice?

We want to help you design the house of your dreams as best as we can. If you can't find the answers you're looking for here, get in touch with our licensed architect or a designer!