Craftsman House Plans - 3 Bed, 2 Bath, 1901 Sq Ft | Plan 2-273 | Monster House Plans

New plans now available on

dreambook-head-logo See all available plans
SHARE ON

All plans are copyrighted by the individual designer.

Photographs may reflect custom changes that were not included in the original design.

Design Comments

See plan 2-263 for basement version of this design.

3 Bedroom, 2 Bath Craftsman House Plan #2-273

Plan Purchase Options

Price: $0

Please uncheck first "Purchase MML without any plan package" under MONSTER MATERIAL LIST

Optional Add-Ons
guaranted-label.png

Best Price Guarantee

*Payment Plans Now
Available Through

img See if you qualify

Floor Plans

What's included?
  • Main Floor

    Reverse

    Clicking the Reverse button does not mean you are ordering your plan reversed. It is for visualization purposes only. You may reverse the plan by ordering under “Optional Add-ons”.

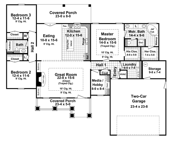
    Main Floor Plan: 2-273

Rear/Alternate Elevations

  • Rear Elevation

    Reverse

    Clicking the Reverse button does not mean you are ordering your plan reversed. It is for visualization purposes only. You may reverse the plan by ordering under “Optional Add-ons”.

    Rear Elevation Plan: 2-273

House Plan Highlights

  • Here you’ll find lovely Craftsman exterior elements, notably the broad, stone-wrapped front porch columns.
  • The center hub of this home includes the three major gathering areas; the Great Room, Kitchen, and Dining space.
  • These three areas have open sight-lines to each other so no-one has to feel left out.
  • Notice there are no formal spaces to collect dust and cobwebs. Every inch of this house you’ll live in and enjoy.
  • This is a split bedroom design meaning the Master suite occupies one side of the house and secondary bedrooms the opposite side.
  • A compact ‘flex’ room is off the garage entrance to the house, perfect for hobbies, and office, or storage.
  • Master bedroom has his and her closets and a fully appointed master bath.

This floor plan is found in our Craftsman house plans section

Full Specs and Features

icon Total Living Area

  • Main floor: 1901
  • Porches: 327
  • Total Finished Sq. Ft.: 1901

icon Beds/Baths

  • Bedrooms: 3
  • Full Baths: 2

icon Garage

  • Garage: 651
  • Garage Stalls: 2

icon Levels

  • 1 story

Dimension

  • Width: 68' 0"
  • Depth: 55' 10"
  • Height: 24' 11"

Roof slope

  • 8:12 (primary)

Walls (exterior)

  • 2"x4"

Ceiling heights

  • 9' (Main)

Foundation Options

  • Crawlspace Standard With Plan
  • Slab Standard With Plan

How Much Will It Cost To Build?

Wondering what it will actually cost to bring this home to life? Get an instant, customized estimate based on your chosen plan and location.

GET MY COST TO BUILD ESTIMATE

Modify This Plan

"Need Content here about modifying your plan"

Customize This Plan

House Plan Features

Split bedrooms
Island Eating bar
Hobby / rec-room Great room Open concept floor plan
Covered front porch Covered rear porch

Reviews

How Much Will It Cost To Build?

Wondering what it will actually cost to bring this home to life? Get an instant, customized estimate based on your chosen plan and location.

GET MY COST TO BUILD ESTIMATE

Modify This Plan

Need changes to the layout or features? Our team can modify any plan to match your vision.

Customize This Plan

House Plan Features

Split bedrooms
Island Eating bar
Hobby / rec-room Great room Open concept floor plan
Covered front porch Covered rear porch

Need Some Quick Tips Or Advice?

We want to help you design the house of your dreams as best as we can. If you can't find the answers you're looking for here, get in touch with our licensed architect or a designer!