Craftsman House Plans - 3 Bed, 2 Bath, 1924 Sq Ft | Plan 2-263 | Monster House Plans

New plans now available on

dreambook-head-logo See all available plans
SHARE ON

All plans are copyrighted by the individual designer.

Photographs may reflect custom changes that were not included in the original design.

Design Comments

See Plan 2-273 for crawl space or slab versions of this design.

3 Bedroom, 2 Bath Craftsman House Plan #2-263

Plan Purchase Options

Price: $0

Please uncheck first "Purchase MML without any plan package" under MONSTER MATERIAL LIST

Optional Add-Ons
guaranted-label.png

Best Price Guarantee

*Payment Plans Now
Available Through

img See if you qualify

Floor Plans

What's included?
  • Main Floor

    Reverse

    Clicking the Reverse button does not mean you are ordering your plan reversed. It is for visualization purposes only. You may reverse the plan by ordering under “Optional Add-ons”.

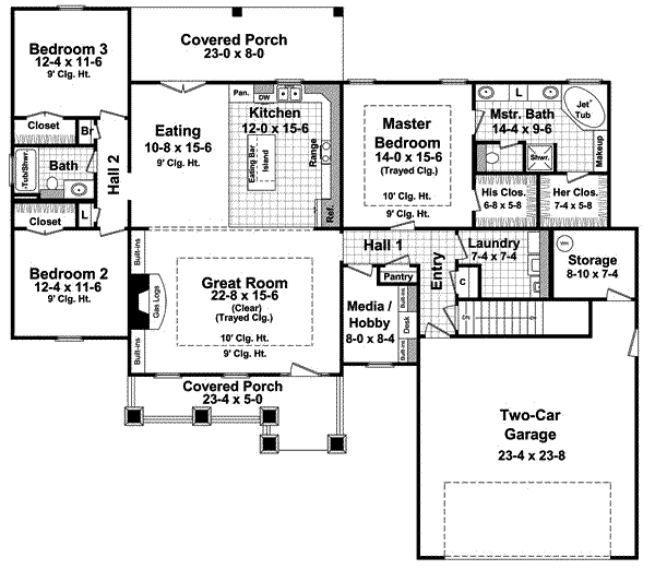
    Main Floor Plan: 2-263

Rear/Alternate Elevations

  • Rear Elevation

    Reverse

    Clicking the Reverse button does not mean you are ordering your plan reversed. It is for visualization purposes only. You may reverse the plan by ordering under “Optional Add-ons”.

    Rear Elevation Plan: 2-263

House Plan Highlights

This home features beautiful craftsman styling. The expansive master suite includes trayed ceilings, large his and her walk-in closets, an oversized jet tub, separate shower, compartmentalized toilet and dual vanities. The trayed ceiling in the great room makes the home feel larger than it actually is. The open floorplan of this home includes a split-bedroom layout, and features the much-requested gas logs or conventional fireplace. Enjoy the rear covered porch, perfect for those family bar-b-ques. Large kitchen features popular raised bar for meals and conversations with family. You just can't go wrong with this home plan!

This floor plan is found in our Craftsman house plans section

Full Specs and Features

icon Total Living Area

  • Main floor: 1924
  • Porches: 327
  • Total Finished Sq. Ft.: 1924

icon Beds/Baths

  • Bedrooms: 3
  • Full Baths: 2

icon Garage

  • Garage: 725
  • Garage Stalls: 2

icon Levels

  • 1 story

Dimension

  • Width: 68' 0"
  • Depth: 59' 10"
  • Height: 24' 11"

Roof slope

  • 8:12 (primary)

Walls (exterior)

  • 2"x4"

Ceiling heights

  • 9' (Main)

Foundation Options

  • Basement Standard With Plan

Frequently Asked Questions About This Plan

  • HELLO THERE , IS THIS PLAN AVAILABLE IN SLAB FOUNDATION.? HOW MUCH IS THE DIFFERENCE.?

    Yes. Look at 2-274 for the slab version of this design.

How Much Will It Cost To Build?

Wondering what it will actually cost to bring this home to life? Get an instant, customized estimate based on your chosen plan and location.

GET MY COST TO BUILD ESTIMATE

Modify This Plan

"Need Content here about modifying your plan"

Customize This Plan

House Plan Features

Suited for a front view Suited for a back view
Split bedrooms
Island Eating bar
Hobby / rec-room Great room Open concept floor plan Mud room No formal living/dining Den / office / computer
Covered front porch Covered rear porch

Reviews

How Much Will It Cost To Build?

Wondering what it will actually cost to bring this home to life? Get an instant, customized estimate based on your chosen plan and location.

GET MY COST TO BUILD ESTIMATE

Modify This Plan

Need changes to the layout or features? Our team can modify any plan to match your vision.

Customize This Plan

House Plan Features

Suited for a front view Suited for a back view
Split bedrooms
Island Eating bar
Hobby / rec-room Great room Open concept floor plan Mud room No formal living/dining Den / office / computer
Covered front porch Covered rear porch

Need Some Quick Tips Or Advice?

We want to help you design the house of your dreams as best as we can. If you can't find the answers you're looking for here, get in touch with our licensed architect or a designer!