Craftsman House Plans - 4 Bed, 4 Bath, 4704 Sq Ft | Plan 31-147 | Monster House Plans

New plans now available on

dreambook-head-logo See all available plans
SHARE ON

All plans are copyrighted by the individual designer.

Photographs may reflect custom changes that were not included in the original design.

Design Comments

Ceiling Heights other than standard 8':
Main Floor: 9'-0"
Great Room: 11'-0" at wall to 16'-9" at ridge
Foyer: 11'-0" at wall to 13'-0" at ridge
Basement: 9'-0"

4 Bedroom, 4 Bath Craftsman House Plan #31-147

Plan Purchase Options

Price: $0

Please uncheck first "Purchase MML without any plan package" under MONSTER MATERIAL LIST

Monster Material List
Optional Add-Ons
guaranted-label.png

Best Price Guarantee

*Payment Plans Now
Available Through

img See if you qualify

Floor Plans

What's included?
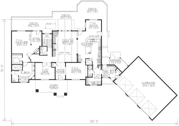
  • Main Floor

    Reverse

    Clicking the Reverse button does not mean you are ordering your plan reversed. It is for visualization purposes only. You may reverse the plan by ordering under “Optional Add-ons”.

    Main Floor Plan: 31-147
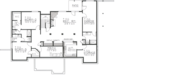
  • Lower Floor

    Reverse

    Clicking the Reverse button does not mean you are ordering your plan reversed. It is for visualization purposes only. You may reverse the plan by ordering under “Optional Add-ons”.

    Lower Floor Plan: 31-147

Rear/Alternate Elevations

  • Rear Elevation

    Reverse

    Clicking the Reverse button does not mean you are ordering your plan reversed. It is for visualization purposes only. You may reverse the plan by ordering under “Optional Add-ons”.

    Rear Elevation Plan: 31-147

House Plan Highlights

- Vaulted raised Entry draws you into this beautiful home.- An Open Floor plan is highlighted by the vaulted beamed ceiling in the Great Room. - The fabulous Kitchen features an island with a vegetable sink double ovens a raised eating bar a walk-in pantry and a wine refrigerator.- A huge Mud Utility Room will capture all of the daily clutter before it enters the house.- The Master Suite includes a Sitting Area with a fireplace as well as a fully loaded Bath.- 9'-0 ceilings on both the Main Floor and Basement creates a larger feeling.- The Basement includes a huge Rec Roomwith a Kitchenette Exercise Room 2Bedrooms and 2 Bathrooms.

This floor plan is found in our Craftsman house plans section

Full Specs and Features

icon Total Living Area

  • Main floor: 2610
  • Lower Floor: 2094
  • Basement: 388
  • Porches: 1040
  • Total Finished Sq. Ft.: 4704

icon Beds/Baths

  • Bedrooms: 4
  • Full Baths: 4
  • Half Baths: 1

icon Garage

  • Garage: 232
  • Garage Stalls: 3

icon Levels

  • 1 story

Dimension

  • Width: 120' 2"
  • Depth: 73' 0"
  • Height: 21' 6"

Roof slope

  • 8:12 (primary)

Walls (exterior)

  • 2"x6"

Ceiling heights

  • 9' (Main)

Foundation Options

  • Basement $275
  • Walk-out basement Standard With Plan
  • Crawlspace $275
  • Slab $275

How Much Will It Cost To Build?

Wondering what it will actually cost to bring this home to life? Get an instant, customized estimate based on your chosen plan and location.

GET MY COST TO BUILD ESTIMATE

Modify This Plan

"Need Content here about modifying your plan"

Customize This Plan

House Plan Features

Suited for a back view Suited for a down-sloping lot
Master sitting area/Nursery
Island Walk-in pantry Eating bar Nook / breakfast
Hobby / rec-room Great room Gym / exercise room Formal dining room Den / office / computer
Covered front porch
Vaulted/Volume/Dramatic ceilings
Oversized garage (3+) Side-entry garage

Reviews

How Much Will It Cost To Build?

Wondering what it will actually cost to bring this home to life? Get an instant, customized estimate based on your chosen plan and location.

GET MY COST TO BUILD ESTIMATE

Modify This Plan

Need changes to the layout or features? Our team can modify any plan to match your vision.

Customize This Plan

House Plan Features

Suited for a back view Suited for a down-sloping lot
Master sitting area/Nursery
Island Walk-in pantry Eating bar Nook / breakfast
Hobby / rec-room Great room Gym / exercise room Formal dining room Den / office / computer
Covered front porch
Vaulted/Volume/Dramatic ceilings
Oversized garage (3+) Side-entry garage

Need Some Quick Tips Or Advice?

We want to help you design the house of your dreams as best as we can. If you can't find the answers you're looking for here, get in touch with our licensed architect or a designer!