European House Plan - 3 Bedrooms, 2 Bath, 2000 Sq Ft Plan 2-201

New plans now available on

dreambook-head-logo See all available plans
  • SPRING SALE - 15% OFF FOR A LIMITED TIME

    Some Restriction Apply - Prices as Marked

SHARE ON

All plans are copyrighted by the individual designer.

Photographs may reflect custom changes that were not included in the original design.

3 Bedroom, 2 Bath European House Plan #2-201

Plan Purchase Options

Price: $0

Please uncheck first "Purchase MML without any plan package" under MONSTER MATERIAL LIST

Optional Add-Ons
guaranted-label.png

Best Price Guarantee

*Payment Plans Now
Available Through

img See if you qualify

Floor Plans

What's included?
  • Main Floor

    Reverse

    Clicking the Reverse button does not mean you are ordering your plan reversed. It is for visualization purposes only. You may reverse the plan by ordering under “Optional Add-ons”.

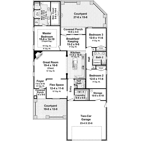
    Main Floor Plan: 2-201

House Plan Highlights

This beautiful European country home features all of the amenities that your family is looking for. Two large bedrooms, each with plenty of closet space, share a bath complete with dual sinks and a tub shower. The master suite features a raised ceiling, a large walk-in closet, and a great bathroom layout. The great room features 12 ft. ceilings and a gas log fireplace which provides a perfect atmosphere for relaxing with family and friends. A breakfast area is provided as well as a flex space that is perfect for a formal dining room. The front entry garage is also perfect for narrow lots. Two courtyard areas also provide a wonderful outdoor space to enjoy with family and friends. This home is one that you and your family will enjoy for years to come.

This floor plan is found in our European house plans section

Full Specs and Features

icon Total Living Area

  • Main floor: 2000
  • Porches: 196
  • Total Finished Sq. Ft.: 2000

icon Beds/Baths

  • Bedrooms: 3
  • Full Baths: 2
  • Half Baths: 1

icon Garage

  • Garage: 555
  • Garage Stalls: 2

icon Levels

  • 1 story

Dimension

  • Width: 44' 0"
  • Depth: 84' 0"
  • Height: 27' 1"

Roof slope

  • 12:12 (primary)
  • 4:12 (secondary)

Walls (exterior)

  • 2"x4"

Ceiling heights

  • 9' (Main)

Foundation Options

  • Crawlspace Standard With Plan
  • Slab Standard With Plan

How Much Will It Cost To Build?

Wondering what it will actually cost to bring this home to life? Get an instant, customized estimate based on your chosen plan and location.

GET MY COST TO BUILD ESTIMATE

Modify This Plan

"Need Content here about modifying your plan"

Customize This Plan

House Plan Features

Suited for a back view Suited for a narrow lot
Island Eating bar
Great room Media room No formal living/dining Den / office / computer Flex Space
Rear / center courtyard
Vaulted/Volume/Dramatic ceilings Photos Available

Reviews

How Much Will It Cost To Build?

Wondering what it will actually cost to bring this home to life? Get an instant, customized estimate based on your chosen plan and location.

GET MY COST TO BUILD ESTIMATE

Modify This Plan

Need changes to the layout or features? Our team can modify any plan to match your vision.

Customize This Plan

House Plan Features

Suited for a back view Suited for a narrow lot
Island Eating bar
Great room Media room No formal living/dining Den / office / computer Flex Space
Rear / center courtyard
Vaulted/Volume/Dramatic ceilings Photos Available

Need Some Quick Tips Or Advice?

We want to help you design the house of your dreams as best as we can. If you can't find the answers you're looking for here, get in touch with our licensed architect or a designer!