European House Plans - 3 Bed, 2 Bath, 2251 Sq Ft | Plan 2-236 | Monster House Plans

New plans now available on

dreambook-head-logo See all available plans
SHARE ON

All plans are copyrighted by the individual designer.

Photographs may reflect custom changes that were not included in the original design.

3 Bedroom, 2 Bath European House Plan #2-236

Plan Purchase Options

Price: $0

Please uncheck first "Purchase MML without any plan package" under MONSTER MATERIAL LIST

Optional Add-Ons
guaranted-label.png

Best Price Guarantee

*Payment Plans Now
Available Through

img See if you qualify

Floor Plans

What's included?
  • Main Floor

    Reverse

    Clicking the Reverse button does not mean you are ordering your plan reversed. It is for visualization purposes only. You may reverse the plan by ordering under “Optional Add-ons”.

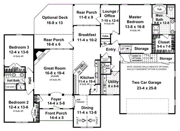
    Main Floor Plan: 2-236
  • Bonus Floor

    Reverse

    Clicking the Reverse button does not mean you are ordering your plan reversed. It is for visualization purposes only. You may reverse the plan by ordering under “Optional Add-ons”.

    Bonus Floor Plan: 2-236

Rear/Alternate Elevations

  • Rear Elevation

    Reverse

    Clicking the Reverse button does not mean you are ordering your plan reversed. It is for visualization purposes only. You may reverse the plan by ordering under “Optional Add-ons”.

    Rear Elevation Plan: 2-236

House Plan Highlights

This versatile houseplan offers the features that many have asked for, including a very flexible floorplan design that can accommodate 3 or 4 bedrooms and 2.5 - 3.5 baths. Design also includes very popular open floorplan with split-bedroom arrangement. Expansive master suite with lounge, oversized jet tub, walk-in shower, and large walk-in closet. Large garage with plenty of room for vehicles and storage. Need space to expand in the future? No problem. Bonus space area over garage can be built to provide room for hobbies, children, or grandchildren. Designed to fit the way your family lives, both now and in the future!

This floor plan is found in our European house plans section

Full Specs and Features

icon Total Living Area

  • Main floor: 2251
  • Bonus: 452
  • Porches: 280
  • Total Finished Sq. Ft.: 2251

icon Beds/Baths

  • Bedrooms: 3
  • Full Baths: 2
  • Half Baths: 1

icon Garage

  • Garage: 650
  • Garage Stalls: 2

icon Levels

  • 1 story

Dimension

  • Width: 73' 8"
  • Depth: 53' 2"
  • Height: 22' 3"

Roof slope

  • 10:12 (primary)
  • 8:12 (secondary)

Walls (exterior)

  • 2"x4"

Ceiling heights

  • 9' (Main)

Foundation Options

  • Basement Standard With Plan
  • Crawlspace Standard With Plan
  • Slab Standard With Plan

How Much Will It Cost To Build?

Wondering what it will actually cost to bring this home to life? Get an instant, customized estimate based on your chosen plan and location.

GET MY COST TO BUILD ESTIMATE

Modify This Plan

"Need Content here about modifying your plan"

Customize This Plan

House Plan Features

Suited for a back view
Split bedrooms
Walk-in pantry Eating bar Nook / breakfast
Great room Open concept floor plan Formal dining room Den / office / computer
Covered front porch Covered rear porch
Vaulted/Volume/Dramatic ceilings

Reviews

How Much Will It Cost To Build?

Wondering what it will actually cost to bring this home to life? Get an instant, customized estimate based on your chosen plan and location.

GET MY COST TO BUILD ESTIMATE

Modify This Plan

Need changes to the layout or features? Our team can modify any plan to match your vision.

Customize This Plan

House Plan Features

Suited for a back view
Split bedrooms
Walk-in pantry Eating bar Nook / breakfast
Great room Open concept floor plan Formal dining room Den / office / computer
Covered front porch Covered rear porch
Vaulted/Volume/Dramatic ceilings

Need Some Quick Tips Or Advice?

We want to help you design the house of your dreams as best as we can. If you can't find the answers you're looking for here, get in touch with our licensed architect or a designer!