Farm House Plans - 3 Bed, 2 Bath, 1673 Sq Ft | Plan 68-141 | Monster House Plans

New plans now available on

dreambook-head-logo See all available plans

House Plans > Farm Style > Plan 68-141

SHARE ON

All plans are copyrighted by the individual designer.

Photographs may reflect custom changes that were not included in the original design.

3 Bedroom, 2 Bath Farm House Plan #68-141

Plan Purchase Options

Price: $0

Please uncheck first "Purchase MML without any plan package" under MONSTER MATERIAL LIST

Monster Material List
Optional Add-Ons
guaranted-label.png

Best Price Guarantee

*Payment Plans Now
Available Through

img See if you qualify

Floor Plans

What's included?
  • Main Floor

    Reverse

    Clicking the Reverse button does not mean you are ordering your plan reversed. It is for visualization purposes only. You may reverse the plan by ordering under “Optional Add-ons”.

    Main Floor Plan: 68-141
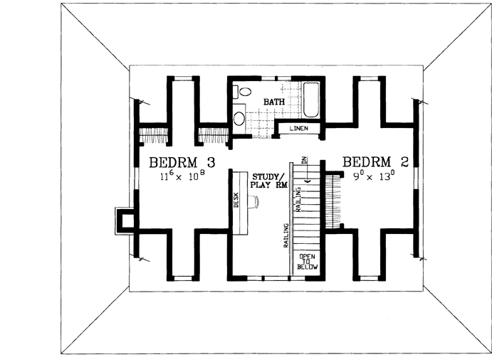
  • Upper/Second Floor

    Reverse

    Clicking the Reverse button does not mean you are ordering your plan reversed. It is for visualization purposes only. You may reverse the plan by ordering under “Optional Add-ons”.

    Upper/Second Floor Plan: 68-141

Rear/Alternate Elevations

  • Rear Elevation

    Reverse

    Clicking the Reverse button does not mean you are ordering your plan reversed. It is for visualization purposes only. You may reverse the plan by ordering under “Optional Add-ons”.

    Rear Elevation Plan: 68-141

House Plan Highlights

This American classic features an elaborate wraparound porch. A Palladian dormer is perfectly situated between two gabled dormers. Two bayed windows protrude from the master bedroom and living room. Inside, the foyer leads to the living room where a fireplace becomes the focal point. The kitchen provides extra eating and cooking space with a snack bar. The breakfast room also has convenient access to the rear of the home. The master bedroom is located on the right side of the first level while two family bedrooms occupy the second level.

This floor plan is found in our Farm house plans section

Full Specs and Features

icon Total Living Area

  • Main floor: 979
  • Upper floor: 694
  • Total Finished Sq. Ft.: 1673

icon Beds/Baths

  • Bedrooms: 3
  • Full Baths: 2

icon Garage

  • Garage: 450
  • Garage Stalls: 2

icon Levels

  • 2 stories

Dimension

  • Width: 52' 0"
  • Depth: 63' 4"
  • Height: 22' 0"

Roof slope

  • 9:12 (primary)

Walls (exterior)

  • 2"x6"

Foundation Options

  • Basement Standard With Plan
  • Walk-out basement $425
  • Crawlspace $295
  • Slab $295

How Much Will It Cost To Build?

Wondering what it will actually cost to bring this home to life? Get an instant, customized estimate based on your chosen plan and location.

GET MY COST TO BUILD ESTIMATE

Modify This Plan

"Need Content here about modifying your plan"

Customize This Plan

House Plan Features

Suited for corner lots
Main floor Master
Eating bar Nook / breakfast
Loft / balcony Formal living room
Covered front porch Covered rear porch Wrap-around porch
ML Model Available
Detached garage Rear garage Side-entry garage

Reviews

How Much Will It Cost To Build?

Wondering what it will actually cost to bring this home to life? Get an instant, customized estimate based on your chosen plan and location.

GET MY COST TO BUILD ESTIMATE

Modify This Plan

Need changes to the layout or features? Our team can modify any plan to match your vision.

Customize This Plan

House Plan Features

Suited for corner lots
Main floor Master
Eating bar Nook / breakfast
Loft / balcony Formal living room
Covered front porch Covered rear porch Wrap-around porch
ML Model Available
Detached garage Rear garage Side-entry garage

Need Some Quick Tips Or Advice?

We want to help you design the house of your dreams as best as we can. If you can't find the answers you're looking for here, get in touch with our licensed architect or a designer!