French Country House Plans - 5 Bed, 4 Bath, 2361 Sq Ft | Plan 68-120 | Monster House Plans

New plans now available on

dreambook-head-logo See all available plans

All plans are copyrighted by the individual designer.

Photographs may reflect custom changes that were not included in the original design.

5 Bedroom, 4 Bath French Country House Plan #68-120

Plan Purchase Options

Price: $0

Please uncheck first "Purchase MML without any plan package" under MONSTER MATERIAL LIST

Monster Material List
Optional Add-Ons
guaranted-label.png

Best Price Guarantee

*Payment Plans Now
Available Through

img See if you qualify

Floor Plans

What's included?
  • Main Floor

    Reverse

    Clicking the Reverse button does not mean you are ordering your plan reversed. It is for visualization purposes only. You may reverse the plan by ordering under “Optional Add-ons”.

    Main Floor Plan: 68-120
  • Upper/Second Floor

    Reverse

    Clicking the Reverse button does not mean you are ordering your plan reversed. It is for visualization purposes only. You may reverse the plan by ordering under “Optional Add-ons”.

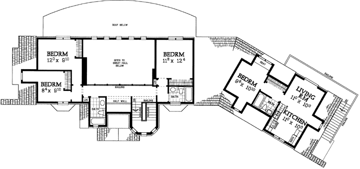
    Upper/Second Floor Plan: 68-120

Rear/Alternate Elevations

  • Rear Elevation

    Reverse

    Clicking the Reverse button does not mean you are ordering your plan reversed. It is for visualization purposes only. You may reverse the plan by ordering under “Optional Add-ons”.

    Rear Elevation Plan: 68-120

House Plan Highlights

Be the owner of your own country estate--this two-story home gives the look and feel of grand-style living without the expense of large square footage. The entry leads to a massive foyer and great hall. There\'s space enough here for living and dining areas.Two window seats in the great hall overlook the rear veranda. One fireplace warms the living area, while another looks through the dining room to the kitchen and breakfast nook. A screened porch offers casual dining space for warm weather. The master suite has another fireplace and window seat and adjoins a luxurious master bath with separate tub and shower. A separate apartment over the garage includes its own living room, kitchen, and bedroom.

This floor plan is found in our French Country house plans section

Full Specs and Features

icon Total Living Area

  • Main floor: 1566
  • Upper floor: 795
  • Total Finished Sq. Ft.: 2361

icon Beds/Baths

  • Bedrooms: 5
  • Full Baths: 4
  • Half Baths: 2

icon Garage

  • Garage: 410
  • Garage Stalls: 2

icon Levels

  • 2 stories

Dimension

  • Width: 116' 3"
  • Depth: 55' 1"
  • Height: 31' 0"

Roof slope

  • 15:12 (primary)

Walls (exterior)

  • 2"x6"

Foundation Options

  • Basement Standard With Plan
  • Walk-out basement $425
  • Crawlspace $295
  • Slab $295

How Much Will It Cost To Build?

Wondering what it will actually cost to bring this home to life? Get an instant, customized estimate based on your chosen plan and location.

GET MY COST TO BUILD ESTIMATE

Modify This Plan

"Need Content here about modifying your plan"

Customize This Plan

House Plan Features

Suited for a back view
Main floor Master In-law quarters/apartment
Eating bar Nook / breakfast
Main Floor laundry Open concept floor plan No formal living/dining
Covered rear porch Screened porch/sunroom Porte Cochere
Grand Entry Vaulted/Volume/Dramatic ceilings
Detached garage Rear-entry garage

Reviews

How Much Will It Cost To Build?

Wondering what it will actually cost to bring this home to life? Get an instant, customized estimate based on your chosen plan and location.

GET MY COST TO BUILD ESTIMATE

Modify This Plan

Need changes to the layout or features? Our team can modify any plan to match your vision.

Customize This Plan

House Plan Features

Suited for a back view
Main floor Master In-law quarters/apartment
Eating bar Nook / breakfast
Main Floor laundry Open concept floor plan No formal living/dining
Covered rear porch Screened porch/sunroom Porte Cochere
Grand Entry Vaulted/Volume/Dramatic ceilings
Detached garage Rear-entry garage

Need Some Quick Tips Or Advice?

We want to help you design the house of your dreams as best as we can. If you can't find the answers you're looking for here, get in touch with our licensed architect or a designer!