French Country House Plans - 4 Bed, 3 Bath, 2823 Sq Ft | Plan 31-152 | Monster House Plans

New plans now available on

dreambook-head-logo See all available plans

All plans are copyrighted by the individual designer.

Photographs may reflect custom changes that were not included in the original design.

Design Comments

Ceiling Heights other than standard 8':
Foyer/Great Room: 17'-3"
Parlor: 8'-0" at wall to 9'-0" flat
Recreation Room: 8'-0" at walls to 12'-4" at ridge
Master: 8'-0" at wall to 11'-8" at ridge.

4 Bedroom, 3 Bath French Country House Plan #31-152

Plan Purchase Options

Price: $0

Please uncheck first "Purchase MML without any plan package" under MONSTER MATERIAL LIST

Monster Material List
Optional Add-Ons
guaranted-label.png

Best Price Guarantee

*Payment Plans Now
Available Through

img See if you qualify

Floor Plans

What's included?
  • Main Floor

    Reverse

    Clicking the Reverse button does not mean you are ordering your plan reversed. It is for visualization purposes only. You may reverse the plan by ordering under “Optional Add-ons”.

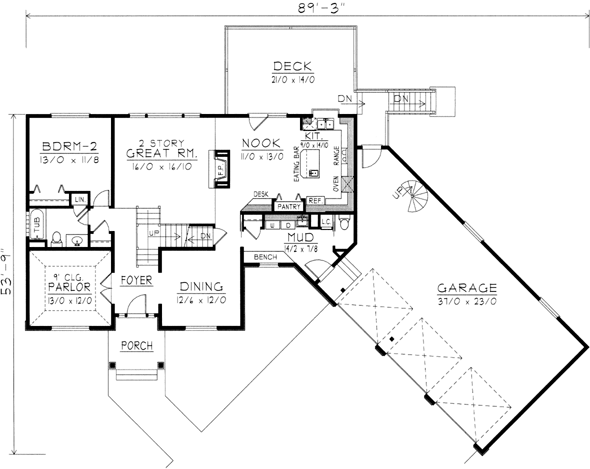
    Main Floor Plan: 31-152
  • Upper/Second Floor

    Reverse

    Clicking the Reverse button does not mean you are ordering your plan reversed. It is for visualization purposes only. You may reverse the plan by ordering under “Optional Add-ons”.

    Upper/Second Floor Plan: 31-152

Rear/Alternate Elevations

  • Rear Elevation

    Reverse

    Clicking the Reverse button does not mean you are ordering your plan reversed. It is for visualization purposes only. You may reverse the plan by ordering under “Optional Add-ons”.

    Rear Elevation Plan: 31-152

House Plan Highlights

- A T-shaped stairway and 2-story ceiling greet you upon entering this grand design.- French doors off the Foyer lead into the Parlor with its coffered ceiling.- The Kitchen features an abundance of cabinets and countertop separate ovens an island with an eating bar desk area and a pantry. It is open to the Nook and has direct access to the huge Deck.- A private Bedroom is located on the Main Floor adjacent to a full Bath.- The Great Room draws in sunlight with its 2-story ceiling and lots of windows.- The Mud Room off the 3-car Garage includes a half Bath laundry facilities and a bench.- Upstairs the vaulted Master Suite contains a huge walk-in closet full Bath and a 3 sided gas fireplace.- The vaulted Rec. Room is a great retreat for the entire family.- An unfinished daylight Basement allows room to grow.

This floor plan is found in our French Country house plans section

Full Specs and Features

icon Total Living Area

  • Main floor: 1595
  • Upper floor: 1228
  • Basement: 1595
  • Porches: 993
  • Total Finished Sq. Ft.: 2823

icon Beds/Baths

  • Bedrooms: 4
  • Full Baths: 3
  • Half Baths: 1

icon Garage

  • Garage: 71
  • Garage Stalls: 3

icon Levels

  • 2 stories

Dimension

  • Width: 89' 3"
  • Depth: 53' 9"
  • Height: 26' 3"

Roof slope

  • 8:12 (primary)
  • 10:12 (secondary)

Walls (exterior)

  • 2"x6"

Ceiling heights

  • 8' (Main)
    8' (Upper)

Foundation Options

  • Basement $275
  • Walk-out basement Standard With Plan
  • Crawlspace $275
  • Slab $275

How Much Will It Cost To Build?

Wondering what it will actually cost to bring this home to life? Get an instant, customized estimate based on your chosen plan and location.

GET MY COST TO BUILD ESTIMATE

Modify This Plan

"Need Content here about modifying your plan"

Customize This Plan

House Plan Features

Suited for a back view Suited for a side-sloping lot Suited for a down-sloping lot
Upstairs Master
Island Eating bar Nook / breakfast
Bonus room Hobby / rec-room Great room Library Mud room Formal dining room Formal living room Den / office / computer
Sun-deck
Vaulted/Volume/Dramatic ceilings
Oversized garage (3+) Side-entry garage

Reviews

How Much Will It Cost To Build?

Wondering what it will actually cost to bring this home to life? Get an instant, customized estimate based on your chosen plan and location.

GET MY COST TO BUILD ESTIMATE

Modify This Plan

Need changes to the layout or features? Our team can modify any plan to match your vision.

Customize This Plan

House Plan Features

Suited for a back view Suited for a side-sloping lot Suited for a down-sloping lot
Upstairs Master
Island Eating bar Nook / breakfast
Bonus room Hobby / rec-room Great room Library Mud room Formal dining room Formal living room Den / office / computer
Sun-deck
Vaulted/Volume/Dramatic ceilings
Oversized garage (3+) Side-entry garage

Need Some Quick Tips Or Advice?

We want to help you design the house of your dreams as best as we can. If you can't find the answers you're looking for here, get in touch with our licensed architect or a designer!