Mediterranean House Plans - 3 Bed, 2 Bath, 2616 Sq Ft | Plan 31-148 | Monster House Plans

New plans now available on

dreambook-head-logo See all available plans

All plans are copyrighted by the individual designer.

Photographs may reflect custom changes that were not included in the original design.

Design Comments

Ceiling Heights other than standard 8':
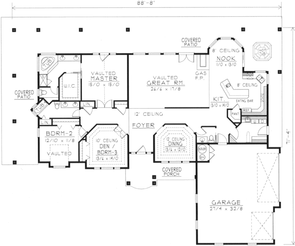
Great Room: 8'-0" at wall to 12'-0" at ridge
Master: 8'-0" at wall to 10'-0" at ridge
Bedroom 2: 8'-0" at wall to 11'-0" at peak
Den / Bdrm-3: 10'-0" waterfall
Dining: 12'-0" waterfall
Master Bath: 8'-0" at wall to 10'-9" at peak

3 Bedroom, 2 Bath Mediterranean House Plan #31-148

Plan Purchase Options

Price: $0

Please uncheck first "Purchase MML without any plan package" under MONSTER MATERIAL LIST

Monster Material List
Optional Add-Ons
guaranted-label.png

Best Price Guarantee

*Payment Plans Now
Available Through

img See if you qualify

Floor Plans

What's included?
  • Main Floor

    Reverse

    Clicking the Reverse button does not mean you are ordering your plan reversed. It is for visualization purposes only. You may reverse the plan by ordering under “Optional Add-ons”.

    Main Floor Plan: 31-148

Rear/Alternate Elevations

  • Rear Elevation

    Reverse

    Clicking the Reverse button does not mean you are ordering your plan reversed. It is for visualization purposes only. You may reverse the plan by ordering under “Optional Add-ons”.

    Rear Elevation Plan: 31-148

House Plan Highlights

- Attractive roof lines quoin corners and shutters adorn the exterior of this attractive home.- Vaulted Master provides direct access to the covered Patio and offers a full bath with vaulted ceilings spa tub separate shower double sinks and a plant ledge that caps off the huge walk-in closet.- Fantastic Kitchen includes an island eating bar corner sink and a walk-in pantry.- Waterfall ceilings adorn the Den and Dining Rooms.- An open floor plan combines the Kitchen Nook and vaulted Great Room.

This floor plan is found in our Mediterranean house plans section

Full Specs and Features

icon Total Living Area

  • Main floor: 2616
  • Lower Floor: 2616
  • Porches: 886
  • Total Finished Sq. Ft.: 2616

icon Beds/Baths

  • Bedrooms: 3
  • Full Baths: 2
  • Half Baths: 1

icon Garage

  • Garage: 179
  • Garage Stalls: 3

icon Levels

  • 1 story

Dimension

  • Width: 88' 8"
  • Depth: 71' 4"
  • Height: 21' 1"

Roof slope

  • 6:12 (primary)

Walls (exterior)

  • 2"x6"

Ceiling heights

  • 8' (Main)

Foundation Options

  • Basement $275
  • Daylight basement $275
  • Crawlspace $275
  • Slab Standard With Plan

How Much Will It Cost To Build?

Wondering what it will actually cost to bring this home to life? Get an instant, customized estimate based on your chosen plan and location.

GET MY COST TO BUILD ESTIMATE

Modify This Plan

"Need Content here about modifying your plan"

Customize This Plan

House Plan Features

Suited for corner lots Suited for a back view
Island Walk-in pantry Eating bar Nook / breakfast
Great room Open concept floor plan Formal dining room Den / office / computer
Covered front porch Covered rear porch Wrap-around porch
Vaulted/Volume/Dramatic ceilings
Oversized garage (3+) Side-entry garage

Reviews

How Much Will It Cost To Build?

Wondering what it will actually cost to bring this home to life? Get an instant, customized estimate based on your chosen plan and location.

GET MY COST TO BUILD ESTIMATE

Modify This Plan

Need changes to the layout or features? Our team can modify any plan to match your vision.

Customize This Plan

House Plan Features

Suited for corner lots Suited for a back view
Island Walk-in pantry Eating bar Nook / breakfast
Great room Open concept floor plan Formal dining room Den / office / computer
Covered front porch Covered rear porch Wrap-around porch
Vaulted/Volume/Dramatic ceilings
Oversized garage (3+) Side-entry garage

Need Some Quick Tips Or Advice?

We want to help you design the house of your dreams as best as we can. If you can't find the answers you're looking for here, get in touch with our licensed architect or a designer!