Modern House Plans - 3 Bed, 1 Bath, 1680 Sq Ft | Plan 5-1332 | Monster House Plans

New plans now available on

dreambook-head-logo See all available plans
SHARE ON

All plans are copyrighted by the individual designer.

Photographs may reflect custom changes that were not included in the original design.

Design Comments

"This designer does not include electrical layouts with their designs."
"Allow up to 15 business days for delivery."

3 Bedroom, 1 Bath Modern House Plan #5-1332

Plan Purchase Options

Price: $0

Please uncheck first "Purchase MML without any plan package" under MONSTER MATERIAL LIST

Optional Add-Ons
guaranted-label.png

Best Price Guarantee

*Payment Plans Now
Available Through

img See if you qualify

Floor Plans

What's included?
  • Main Floor

    Reverse

    Clicking the Reverse button does not mean you are ordering your plan reversed. It is for visualization purposes only. You may reverse the plan by ordering under “Optional Add-ons”.

    Main Floor Plan: 5-1332
  • Upper/Second Floor

    Reverse

    Clicking the Reverse button does not mean you are ordering your plan reversed. It is for visualization purposes only. You may reverse the plan by ordering under “Optional Add-ons”.

    Upper/Second Floor Plan: 5-1332
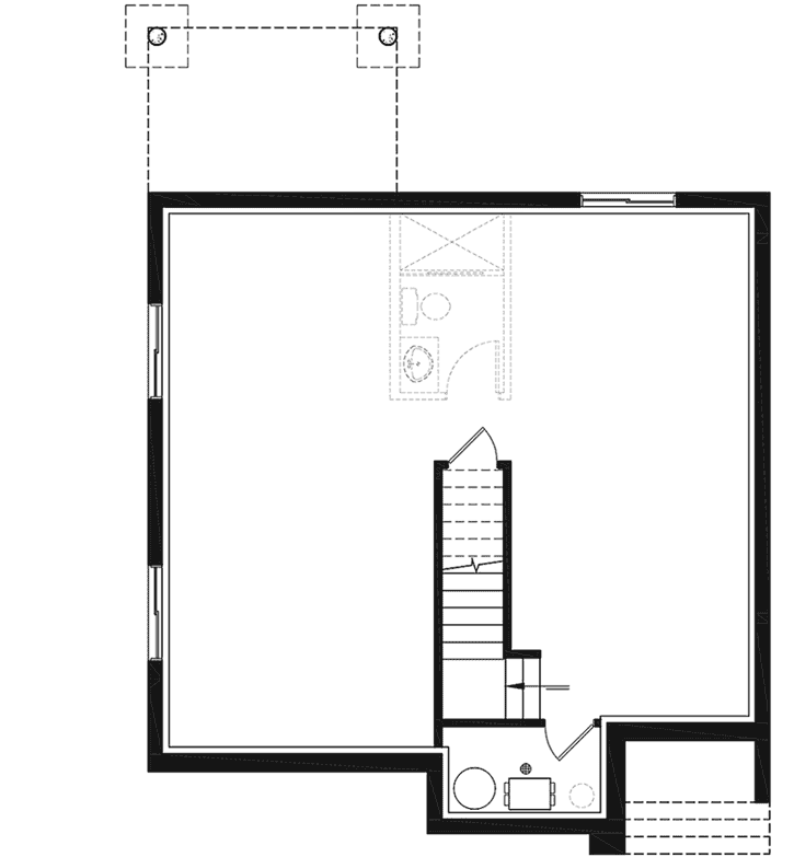
  • Lower Floor

    Reverse

    Clicking the Reverse button does not mean you are ordering your plan reversed. It is for visualization purposes only. You may reverse the plan by ordering under “Optional Add-ons”.

    Lower Floor Plan: 5-1332

Rear/Alternate Elevations

  • Rear Elevation

    Reverse

    Clicking the Reverse button does not mean you are ordering your plan reversed. It is for visualization purposes only. You may reverse the plan by ordering under “Optional Add-ons”.

    Rear Elevation Plan: 5-1332

House Plan Highlights

ul li2-story home plan modern cubic style design.li liEntrance hall with practical large walk-in closet.li liLaundry room conveniently located on main floor.li liKitchen with lots of counter space a pantry and a large kitchen island.li liOpen kitchen dining and living room floor concept.li liMaster bedroom can easily accommodate a large king size bed and has a walk-in closet.li liOne of the secondary bedroom has a walk-in closet the other secondary bedroom has a built-in study desk.li liLinen closet located near family bathroom.li liFamily bathroom with large shower stall and separate bath.li liUnfinished daylight basement can be finished in additional bedrooms playroom or else.li ul

This floor plan is found in our Modern house plans section

Full Specs and Features

icon Total Living Area

  • Main floor: 858
  • Upper floor: 822
  • Basement: 858
  • Porches: 21
  • Total Finished Sq. Ft.: 1680

icon Beds/Baths

  • Bedrooms: 3
  • Full Baths: 1
  • Half Baths: 1

icon Levels

  • 2 stories

Dimension

  • Width: 30' 0"
  • Depth: 32' 0"
  • Height: 22' 0"

Walls (exterior)

  • 2"x6"

Ceiling heights

  • 8' (Main)
    8' (Upper)

Roof Framing

  • Truss

Foundation Options

  • Basement Standard With Plan
  • Crawlspace $450

How Much Will It Cost To Build?

Wondering what it will actually cost to bring this home to life? Get an instant, customized estimate based on your chosen plan and location.

GET MY COST TO BUILD ESTIMATE

Modify This Plan

"Need Content here about modifying your plan"

Customize This Plan

House Plan Features

Upstairs Master
Island Walk-in pantry Eating bar
Main Floor laundry Open concept floor plan No formal living/dining Unfinished/future space

Reviews

How Much Will It Cost To Build?

Wondering what it will actually cost to bring this home to life? Get an instant, customized estimate based on your chosen plan and location.

GET MY COST TO BUILD ESTIMATE

Modify This Plan

Need changes to the layout or features? Our team can modify any plan to match your vision.

Customize This Plan

House Plan Features

Upstairs Master
Island Walk-in pantry Eating bar
Main Floor laundry Open concept floor plan No formal living/dining Unfinished/future space

Need Some Quick Tips Or Advice?

We want to help you design the house of your dreams as best as we can. If you can't find the answers you're looking for here, get in touch with our licensed architect or a designer!