Mountain or Rustic House Plans - 2 Bed, 1 Bath, 1240 Sq Ft | Plan 5-1347 | Monster House Plans

New plans now available on

dreambook-head-logo See all available plans

All plans are copyrighted by the individual designer.

Photographs may reflect custom changes that were not included in the original design.

Design Comments

"This designer does not include electrical layouts with their designs."
"Allow up to 15 business days for delivery."

2 Bedroom, 1 Bath Mountain Or Rustic House Plan #5-1347

Plan Purchase Options

Price: $0

Please uncheck first "Purchase MML without any plan package" under MONSTER MATERIAL LIST

Optional Add-Ons
guaranted-label.png

Best Price Guarantee

*Payment Plans Now
Available Through

img See if you qualify

Floor Plans

What's included?
  • Main Floor

    Reverse

    Clicking the Reverse button does not mean you are ordering your plan reversed. It is for visualization purposes only. You may reverse the plan by ordering under “Optional Add-ons”.

    Main Floor Plan: 5-1347
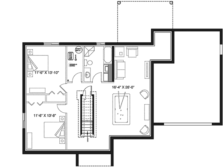
  • Lower Floor

    Reverse

    Clicking the Reverse button does not mean you are ordering your plan reversed. It is for visualization purposes only. You may reverse the plan by ordering under “Optional Add-ons”.

    Lower Floor Plan: 5-1347

Rear/Alternate Elevations

  • Rear Elevation

    Reverse

    Clicking the Reverse button does not mean you are ordering your plan reversed. It is for visualization purposes only. You may reverse the plan by ordering under “Optional Add-ons”.

    Rear Elevation Plan: 5-1347

House Plan Highlights

ul liNordic style house with a mix of very trendy modern and rustic. li liPartial cathedral ceiling in living room and dining room. li liEntrance with coat closet. li liGarage entrance with walk-in closet (mud room). li liDining room and living room with an open concept and fireplace. li liKitchen with island that sits 3 with large pantry. li liMaster bedroom with 2 closets and a section of the ceiling that is 11-10.li liSecondary bedroom with walk-in closet. li liFull bathroom with large shower and separate bath. li liSuggestion of 2 bedrooms storage room and shower room in the basement included in the plan you will receive. li ul

This floor plan is found in our Mountain or Rustic house plans section

Full Specs and Features

icon Total Living Area

  • Main floor: 1240
  • Basement: 1240
  • Porches: 38
  • Total Finished Sq. Ft.: 1240

icon Beds/Baths

  • Bedrooms: 2
  • Full Baths: 1

icon Garage

  • Garage: 500
  • Garage Stalls: 1

icon Levels

  • 1 story

Dimension

  • Width: 58' 0"
  • Depth: 36' 4"
  • Height: 21' 10"

Walls (exterior)

  • 2"x6"

Ceiling heights

  • 8' (Main)

Roof Framing

  • Truss

Foundation Options

  • Basement Standard With Plan
  • Crawlspace $450

How Much Will It Cost To Build?

Wondering what it will actually cost to bring this home to life? Get an instant, customized estimate based on your chosen plan and location.

GET MY COST TO BUILD ESTIMATE

Modify This Plan

"Need Content here about modifying your plan"

Customize This Plan

House Plan Features

Island Walk-in pantry Eating bar
Hobby / rec-room Open concept floor plan No formal living/dining Unfinished/future space
Covered rear porch
Photos Available

Reviews

How Much Will It Cost To Build?

Wondering what it will actually cost to bring this home to life? Get an instant, customized estimate based on your chosen plan and location.

GET MY COST TO BUILD ESTIMATE

Modify This Plan

Need changes to the layout or features? Our team can modify any plan to match your vision.

Customize This Plan

House Plan Features

Island Walk-in pantry Eating bar
Hobby / rec-room Open concept floor plan No formal living/dining Unfinished/future space
Covered rear porch
Photos Available

Need Some Quick Tips Or Advice?

We want to help you design the house of your dreams as best as we can. If you can't find the answers you're looking for here, get in touch with our licensed architect or a designer!