Northwest House Plans - 4 Bed, 2 Bath, 1852 Sq Ft | Plan 88-179 | Monster House Plans

New plans now available on

dreambook-head-logo See all available plans
  • MEMORIAL DAY SALE! - 15% OFF Most Plans

    Some exceptions apply. Prices as marked.

SHARE ON

All plans are copyrighted by the individual designer.

Photographs may reflect custom changes that were not included in the original design.

Design Comments

Additional fees apply when building in Washington State. Please contact us for details. Please note: An electrical schematic is not included.

4 Bedroom, 2 Bath Northwest House Plan #88-179

Plan Purchase Options

Price: $0

Please uncheck first "Purchase MML without any plan package" under MONSTER MATERIAL LIST

Monster Material List
Optional Add-Ons
guaranted-label.png

Best Price Guarantee

*Payment Plans Now
Available Through

img See if you qualify

Floor Plans

What's included?
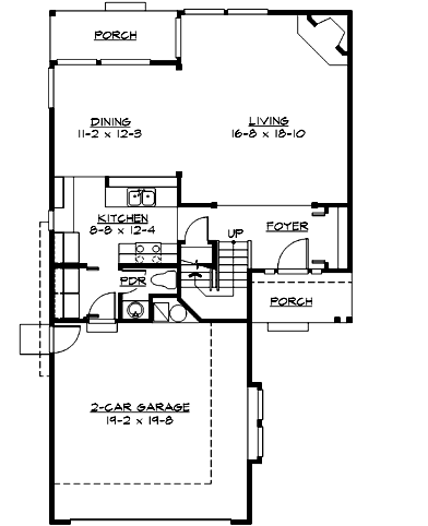
  • Main Floor

    Reverse

    Clicking the Reverse button does not mean you are ordering your plan reversed. It is for visualization purposes only. You may reverse the plan by ordering under “Optional Add-ons”.

    Main Floor Plan: 88-179
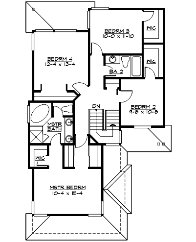
  • Upper/Second Floor

    Reverse

    Clicking the Reverse button does not mean you are ordering your plan reversed. It is for visualization purposes only. You may reverse the plan by ordering under “Optional Add-ons”.

    Upper/Second Floor Plan: 88-179

Rear/Alternate Elevations

  • Rear Elevation

    Reverse

    Clicking the Reverse button does not mean you are ordering your plan reversed. It is for visualization purposes only. You may reverse the plan by ordering under “Optional Add-ons”.

    Rear Elevation Plan: 88-179

House Plan Highlights

Full Specs and Features

icon Total Living Area

  • Main floor: 807
  • Upper floor: 1045
  • Total Finished Sq. Ft.: 1852

icon Beds/Baths

  • Bedrooms: 4
  • Full Baths: 2
  • Half Baths: 1

icon Garage

  • Garage: 418
  • Garage Stalls: 2

icon Levels

  • 2 stories

Dimension

  • Width: 30' 0"
  • Depth: 51' 0"
  • Height: 22' 0"

Roof slope

  • 5:12 (primary)

Walls (exterior)

  • 2"x6"

Ceiling heights

  • 8' (Main)
    8' (Upper)

Roof Framing

  • Truss

Foundation Options

  • Crawlspace Standard With Plan

How Much Will It Cost To Build?

Wondering what it will actually cost to bring this home to life? Get an instant, customized estimate based on your chosen plan and location.

GET MY COST TO BUILD ESTIMATE

Modify This Plan

"Need Content here about modifying your plan"

Customize This Plan

House Plan Features

Suited for a narrow lot
Upstairs Master
Eating bar
Great room Main Floor laundry Open concept floor plan No formal living/dining
Covered front porch Covered rear porch

Reviews

How Much Will It Cost To Build?

Wondering what it will actually cost to bring this home to life? Get an instant, customized estimate based on your chosen plan and location.

GET MY COST TO BUILD ESTIMATE

Modify This Plan

Need changes to the layout or features? Our team can modify any plan to match your vision.

Customize This Plan

House Plan Features

Suited for a narrow lot
Upstairs Master
Eating bar
Great room Main Floor laundry Open concept floor plan No formal living/dining
Covered front porch Covered rear porch

Need Some Quick Tips Or Advice?

We want to help you design the house of your dreams as best as we can. If you can't find the answers you're looking for here, get in touch with our licensed architect or a designer!