Northwest House Plans - 4 Bed, 5 Bath, 5022 Sq Ft | Plan 31-154 | Monster House Plans

New plans now available on

dreambook-head-logo See all available plans
SHARE ON

All plans are copyrighted by the individual designer.

Photographs may reflect custom changes that were not included in the original design.

Design Comments

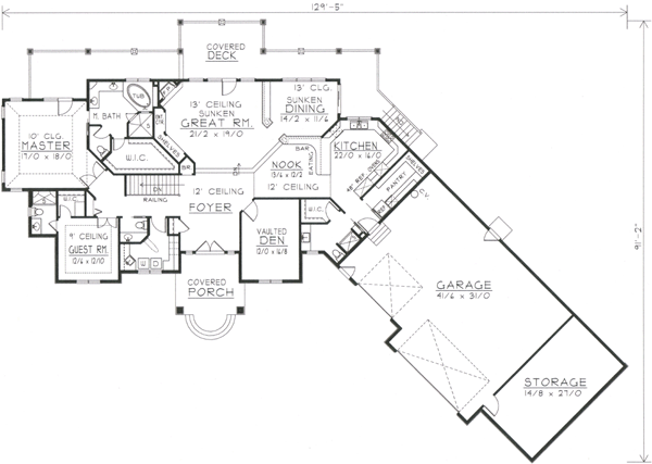
Ceiling Heights other than standard 8':
Living & Dining: 13'-3"
Den: 9'-2" at wall to 11'-6" at ridge
Foyer & Nook: 12'-2"
Main Floor: 9'-2"
Master: 10'-0"

4 Bedroom, 5 Bath Northwest House Plan #31-154

Plan Purchase Options

Price: $0

Please uncheck first "Purchase MML without any plan package" under MONSTER MATERIAL LIST

Monster Material List
Optional Add-Ons
guaranted-label.png

Best Price Guarantee

*Payment Plans Now
Available Through

img See if you qualify

Floor Plans

What's included?
  • Main Floor

    Reverse

    Clicking the Reverse button does not mean you are ordering your plan reversed. It is for visualization purposes only. You may reverse the plan by ordering under “Optional Add-ons”.

    Main Floor Plan: 31-154
  • Lower Floor

    Reverse

    Clicking the Reverse button does not mean you are ordering your plan reversed. It is for visualization purposes only. You may reverse the plan by ordering under “Optional Add-ons”.

    Lower Floor Plan: 31-154

Rear/Alternate Elevations

  • Rear Elevation

    Reverse

    Clicking the Reverse button does not mean you are ordering your plan reversed. It is for visualization purposes only. You may reverse the plan by ordering under “Optional Add-ons”.

    Rear Elevation Plan: 31-154

House Plan Highlights

- Twelve foot ceilings and a view thru the sunken Great Room an Dining Room welcomes you upon entering this beautiful home.- A unique eating bar overlooks the Dining Room which is open to the Kitchen and Nook areas.- Built-in display cases and a gas fireplace adorn the sunken Great Room.- The Master Suite is fabulous with a coffer ceiling and spectacular Bath.- The Basement include a huge Family Room with a 9' ceiling and a wet bar two Bedrooms with walk-in closets and a shared Bath an Exercise Room complete with a Sauna an additional Bath and lots of Storage.

This floor plan is found in our Northwest house plans section

Full Specs and Features

icon Total Living Area

  • Main floor: 2907
  • Lower Floor: 2115
  • Basement: 792
  • Porches: 1692
  • Total Finished Sq. Ft.: 5022

icon Beds/Baths

  • Bedrooms: 4
  • Full Baths: 5
  • Half Baths: 1

icon Garage

  • Garage: 190
  • Garage Stalls: 3

icon Levels

  • 1 story

Dimension

  • Width: 129' 5"
  • Depth: 91' 2"
  • Height: 22' 1"

Roof slope

  • 6:12 (primary)
  • 9:12 (secondary)

Walls (exterior)

  • 2"x6"

Ceiling heights

  • 9' (Main)

Foundation Options

  • Basement $275
  • Walk-out basement Standard With Plan
  • Crawlspace $275
  • Slab $275

How Much Will It Cost To Build?

Wondering what it will actually cost to bring this home to life? Get an instant, customized estimate based on your chosen plan and location.

GET MY COST TO BUILD ESTIMATE

Modify This Plan

"Need Content here about modifying your plan"

Customize This Plan

House Plan Features

Suited for a back view Suited for a side-sloping lot Suited for a down-sloping lot
Guest suite Teen suite/Jack & Jill bath
Walk-in pantry Eating bar Nook / breakfast
Family room Great room Gym / exercise room Open concept floor plan Formal dining room Den / office / computer Unfinished/future space
Covered rear porch
Vaulted/Volume/Dramatic ceilings
Workshop Oversized garage (3+) Side-entry garage

Reviews

How Much Will It Cost To Build?

Wondering what it will actually cost to bring this home to life? Get an instant, customized estimate based on your chosen plan and location.

GET MY COST TO BUILD ESTIMATE

Modify This Plan

Need changes to the layout or features? Our team can modify any plan to match your vision.

Customize This Plan

House Plan Features

Suited for a back view Suited for a side-sloping lot Suited for a down-sloping lot
Guest suite Teen suite/Jack & Jill bath
Walk-in pantry Eating bar Nook / breakfast
Family room Great room Gym / exercise room Open concept floor plan Formal dining room Den / office / computer Unfinished/future space
Covered rear porch
Vaulted/Volume/Dramatic ceilings
Workshop Oversized garage (3+) Side-entry garage

Need Some Quick Tips Or Advice?

We want to help you design the house of your dreams as best as we can. If you can't find the answers you're looking for here, get in touch with our licensed architect or a designer!