Ranch House Plans - 4 Bed, 4 Bath, 3162 Sq Ft | Plan 31-127 | Monster House Plans

New plans now available on

dreambook-head-logo See all available plans
SHARE ON

All plans are copyrighted by the individual designer.

Photographs may reflect custom changes that were not included in the original design.

Design Comments

Ceiling Heights other than standard 8':
Dining Room: 9'-0"
Great Room: 8'-0" at wall to 11'-3" at ridge
Foyer: 9'-0"

4 Bedroom, 4 Bath Ranch House Plan #31-127

Plan Purchase Options

Price: $0

Please uncheck first "Purchase MML without any plan package" under MONSTER MATERIAL LIST

Monster Material List
Optional Add-Ons
guaranted-label.png

Best Price Guarantee

*Payment Plans Now
Available Through

img See if you qualify

Floor Plans

What's included?
  • Main Floor

    Reverse

    Clicking the Reverse button does not mean you are ordering your plan reversed. It is for visualization purposes only. You may reverse the plan by ordering under “Optional Add-ons”.

    Main Floor Plan: 31-127
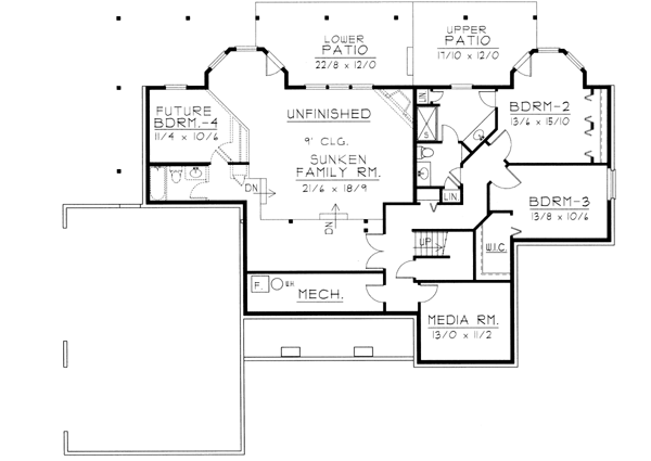
  • Lower Floor

    Reverse

    Clicking the Reverse button does not mean you are ordering your plan reversed. It is for visualization purposes only. You may reverse the plan by ordering under “Optional Add-ons”.

    Lower Floor Plan: 31-127

Rear/Alternate Elevations

  • Rear Elevation

    Reverse

    Clicking the Reverse button does not mean you are ordering your plan reversed. It is for visualization purposes only. You may reverse the plan by ordering under “Optional Add-ons”.

    Rear Elevation Plan: 31-127

House Plan Highlights

- A combination of stone shutters and columns blend to create a magnificent exterior.- Columns and arches welcome you into this home.- A see through fireplace adds charm to the Kitchen Nook as well as the vaulted Great Room.- The fantastic Master beholds an octagonal sitting area.- The Master Bath includes separate tub and shower walk-in closet double sinks and a make up vanity.- The Den has built-in book shelves and could serve as an addition Bedroom.- A Jack & Jill Bath serves 2 large Bedrooms in the basement.- There is no lack of room to expand as the basement allows for a future sunken Family Room another Bedroom and an additional Bath.

This floor plan is found in our Ranch house plans section

Full Specs and Features

icon Total Living Area

  • Main floor: 2113
  • Lower Floor: 1049
  • Basement: 1064
  • Porches: 921
  • Total Finished Sq. Ft.: 3162

icon Beds/Baths

  • Bedrooms: 4
  • Full Baths: 4

icon Garage

  • Garage: 147
  • Garage Stalls: 3

icon Levels

  • 1 story

Dimension

  • Width: 79' 6"
  • Depth: 58' 6"
  • Height: 20' 11"

Roof slope

  • 7:12 (primary)

Walls (exterior)

  • 2"x6"

Ceiling heights

  • 8' (Main)

Foundation Options

  • Basement $275
  • Walk-out basement Standard With Plan
  • Crawlspace $275
  • Slab $275

How Much Will It Cost To Build?

Wondering what it will actually cost to bring this home to life? Get an instant, customized estimate based on your chosen plan and location.

GET MY COST TO BUILD ESTIMATE

Modify This Plan

"Need Content here about modifying your plan"

Customize This Plan

House Plan Features

Suited for corner lots Suited for a back view Suited for a down-sloping lot
Master sitting area/Nursery
Island Eating bar Nook / breakfast
Family room Great room Media room Open concept floor plan Formal dining room Den / office / computer Unfinished/future space
Vaulted/Volume/Dramatic ceilings
Oversized garage (3+) Side-entry garage

Reviews

How Much Will It Cost To Build?

Wondering what it will actually cost to bring this home to life? Get an instant, customized estimate based on your chosen plan and location.

GET MY COST TO BUILD ESTIMATE

Modify This Plan

Need changes to the layout or features? Our team can modify any plan to match your vision.

Customize This Plan

House Plan Features

Suited for corner lots Suited for a back view Suited for a down-sloping lot
Master sitting area/Nursery
Island Eating bar Nook / breakfast
Family room Great room Media room Open concept floor plan Formal dining room Den / office / computer Unfinished/future space
Vaulted/Volume/Dramatic ceilings
Oversized garage (3+) Side-entry garage

Need Some Quick Tips Or Advice?

We want to help you design the house of your dreams as best as we can. If you can't find the answers you're looking for here, get in touch with our licensed architect or a designer!