Southern Colonial House Plans - 5 Bed, 3 Bath, 4426 Sq Ft | Plan 106-288 | Monster House Plans

New plans now available on

dreambook-head-logo See all available plans
  • MEMORIAL DAY SALE! - 15% OFF Most Plans

    Some exceptions apply. Prices as marked.

All plans are copyrighted by the individual designer.

Photographs may reflect custom changes that were not included in the original design.

5 Bedroom, 3 Bath Southern Colonial House Plan #106-288

Plan Purchase Options

Price: $0

Please uncheck first "Purchase MML without any plan package" under MONSTER MATERIAL LIST

Monster Material List
Optional Add-Ons
guaranted-label.png

Best Price Guarantee

*Payment Plans Now
Available Through

img See if you qualify

Floor Plans

What's included?
  • Main Floor

    Reverse

    Clicking the Reverse button does not mean you are ordering your plan reversed. It is for visualization purposes only. You may reverse the plan by ordering under “Optional Add-ons”.

    Main Floor Plan: 106-288
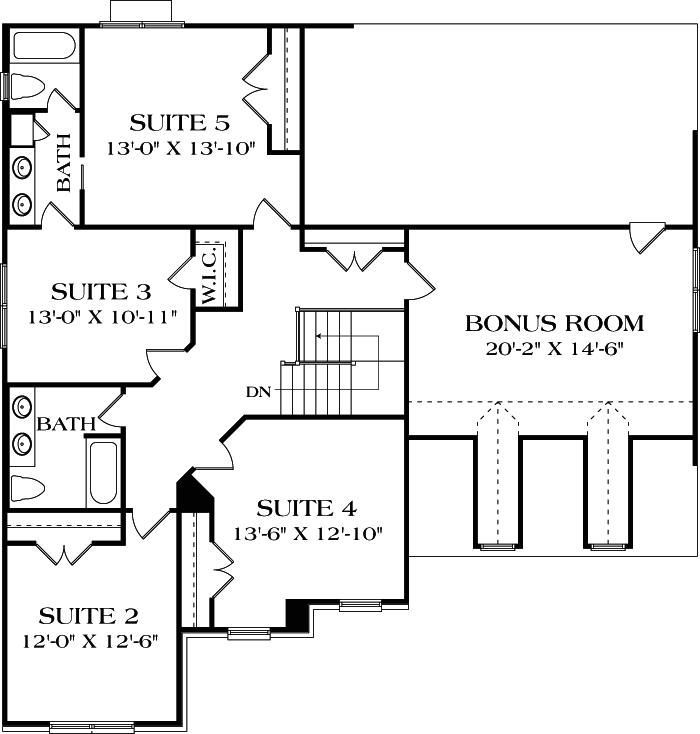
  • Upper/Second Floor

    Reverse

    Clicking the Reverse button does not mean you are ordering your plan reversed. It is for visualization purposes only. You may reverse the plan by ordering under “Optional Add-ons”.

    Upper/Second Floor Plan: 106-288
  • Lower Floor

    Reverse

    Clicking the Reverse button does not mean you are ordering your plan reversed. It is for visualization purposes only. You may reverse the plan by ordering under “Optional Add-ons”.

    Lower Floor Plan: 106-288

House Plan Highlights

With 5 bedrooms, this home has a spot for every member of the family. The large kitchen with island opens to a spacious breakfast and then the family room. Main level master suite with tray ceiling offers a large master bath with whirlpool tub and shower. The second level provides 4 bedrooms and open bonus room for the rest of the family. The unfinished basement with bath is open and perfect for a recreation room.

This floor plan is found in our Southern Colonial house plans section

Full Specs and Features

icon Total Living Area

  • Main floor: 1593
  • Upper floor: 1206
  • Lower Floor: 1627
  • Bonus: 370
  • Total Finished Sq. Ft.: 4426

icon Beds/Baths

  • Bedrooms: 5
  • Full Baths: 3
  • Half Baths: 1

icon Garage

  • Garage: 498
  • Garage Stalls: 2

icon Levels

  • 2 stories

Dimension

  • Width: 49' 4"
  • Depth: 50' 3"

Walls (exterior)

  • 2"x4"

Ceiling heights

  • 9' (Main)
    8' (Upper)

Foundation Options

  • Walk-out basement Standard With Plan

How Much Will It Cost To Build?

Wondering what it will actually cost to bring this home to life? Get an instant, customized estimate based on your chosen plan and location.

GET MY COST TO BUILD ESTIMATE

Modify This Plan

"Need Content here about modifying your plan"

Customize This Plan

House Plan Features

Suited for a down-sloping lot Suited for a narrow lot
Main floor Master Teen suite/Jack & Jill bath
Island Eating bar Nook / breakfast
Bonus room Family room Main Floor laundry Open concept floor plan Formal dining room Unfinished/future space

Reviews

How Much Will It Cost To Build?

Wondering what it will actually cost to bring this home to life? Get an instant, customized estimate based on your chosen plan and location.

GET MY COST TO BUILD ESTIMATE

Modify This Plan

Need changes to the layout or features? Our team can modify any plan to match your vision.

Customize This Plan

House Plan Features

Suited for a down-sloping lot Suited for a narrow lot
Main floor Master Teen suite/Jack & Jill bath
Island Eating bar Nook / breakfast
Bonus room Family room Main Floor laundry Open concept floor plan Formal dining room Unfinished/future space

Need Some Quick Tips Or Advice?

We want to help you design the house of your dreams as best as we can. If you can't find the answers you're looking for here, get in touch with our licensed architect or a designer!