Southern House Plans - 3 Bed, 2 Bath, 1635 Sq Ft | Plan 2-265 | Monster House Plans

New plans now available on

dreambook-head-logo See all available plans
  • MEMORIAL DAY SALE! - 15% OFF Most Plans

    Some exceptions apply. Prices as marked.

SHARE ON

All plans are copyrighted by the individual designer.

Photographs may reflect custom changes that were not included in the original design.

Design Comments

"HEATED AREA: 1635 S.F.

UNHEATED AREA: 1400 S.F.
FRONT PORCH: 192 S.F.
REAR PORCH: 55 S.F.
GARAGE / STORAGE: 727 S.F.
BONUS ROOM: 426 S.F."

3 Bedroom, 2 Bath Southern House Plan #2-265

Plan Purchase Options

Price: $0

Please uncheck first "Purchase MML without any plan package" under MONSTER MATERIAL LIST

Optional Add-Ons
guaranted-label.png

Best Price Guarantee

*Payment Plans Now
Available Through

img See if you qualify

Floor Plans

What's included?
  • Main Floor

    Reverse

    Clicking the Reverse button does not mean you are ordering your plan reversed. It is for visualization purposes only. You may reverse the plan by ordering under “Optional Add-ons”.

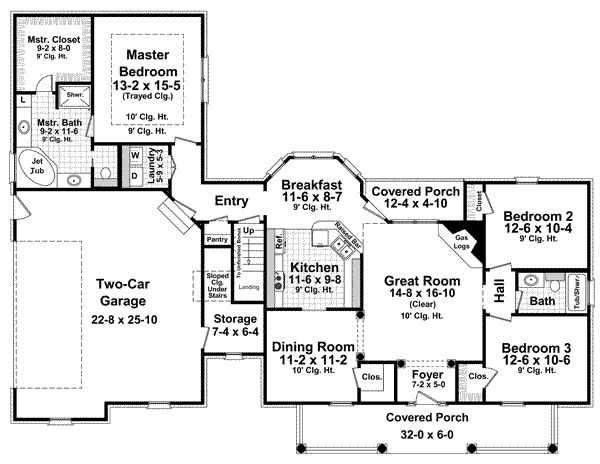
    Main Floor Plan: 2-265
  • Bonus Floor

    Reverse

    Clicking the Reverse button does not mean you are ordering your plan reversed. It is for visualization purposes only. You may reverse the plan by ordering under “Optional Add-ons”.

    Bonus Floor Plan: 2-265

Rear/Alternate Elevations

  • Rear Elevation

    Reverse

    Clicking the Reverse button does not mean you are ordering your plan reversed. It is for visualization purposes only. You may reverse the plan by ordering under “Optional Add-ons”.

    Rear Elevation Plan: 2-265

House Plan Highlights

This beautiful country-styled home offers a very functional split floorplan layout. The great room features 10-foot ceilings and cozy fireplace with gas logs. Excellent views of the great room and back yard from kitchen. The expansive and well-appointed master suite includes a large walk-in closet, an oversized jet tub, separate shower, compartmentalized toilet and dual vanities. A large 2 car garage with separate storage is provided and the optional bonus room is an excellent space for a playroom and even has room for an extra bath. This home truly has the flexibility and features that your family wants!

This floor plan is found in our Southern house plans section

Full Specs and Features

icon Total Living Area

  • Main floor: 1635
  • Bonus: 426
  • Porches: 247
  • Total Finished Sq. Ft.: 1635

icon Beds/Baths

  • Bedrooms: 3
  • Full Baths: 2

icon Garage

  • Garage: 727
  • Garage Stalls: 2

icon Levels

  • 1 story

Dimension

  • Width: 70' 8"
  • Depth: 53' 10"
  • Height: 26' 8"

Roof slope

  • 12:12 (primary)
  • 10:12 (secondary)

Walls (exterior)

  • 2"x4"

Ceiling heights

  • 9' (Main)

Foundation Options

  • Crawlspace Standard With Plan
  • Slab Standard With Plan

How Much Will It Cost To Build?

Wondering what it will actually cost to bring this home to life? Get an instant, customized estimate based on your chosen plan and location.

GET MY COST TO BUILD ESTIMATE

Modify This Plan

"Need Content here about modifying your plan"

Customize This Plan

House Plan Features

Suited for corner lots Suited for a back view
Split bedrooms
Eating bar Nook / breakfast
Bonus room Great room Open concept floor plan Formal dining room
Covered front porch Covered rear porch
Side-entry garage

Reviews

How Much Will It Cost To Build?

Wondering what it will actually cost to bring this home to life? Get an instant, customized estimate based on your chosen plan and location.

GET MY COST TO BUILD ESTIMATE

Modify This Plan

Need changes to the layout or features? Our team can modify any plan to match your vision.

Customize This Plan

House Plan Features

Suited for corner lots Suited for a back view
Split bedrooms
Eating bar Nook / breakfast
Bonus room Great room Open concept floor plan Formal dining room
Covered front porch Covered rear porch
Side-entry garage

Need Some Quick Tips Or Advice?

We want to help you design the house of your dreams as best as we can. If you can't find the answers you're looking for here, get in touch with our licensed architect or a designer!