Southern House Plans - 3 Bed, 2 Bath, 1799 Sq Ft | Plan 2-168 | Monster House Plans

New plans now available on

dreambook-head-logo See all available plans
SHARE ON

All plans are copyrighted by the individual designer.

Photographs may reflect custom changes that were not included in the original design.

3 Bedroom, 2 Bath Southern House Plan #2-168

Plan Purchase Options

Price: $0

Please uncheck first "Purchase MML without any plan package" under MONSTER MATERIAL LIST

Optional Add-Ons
guaranted-label.png

Best Price Guarantee

*Payment Plans Now
Available Through

img See if you qualify

Floor Plans

What's included?
  • Main Floor

    Reverse

    Clicking the Reverse button does not mean you are ordering your plan reversed. It is for visualization purposes only. You may reverse the plan by ordering under “Optional Add-ons”.

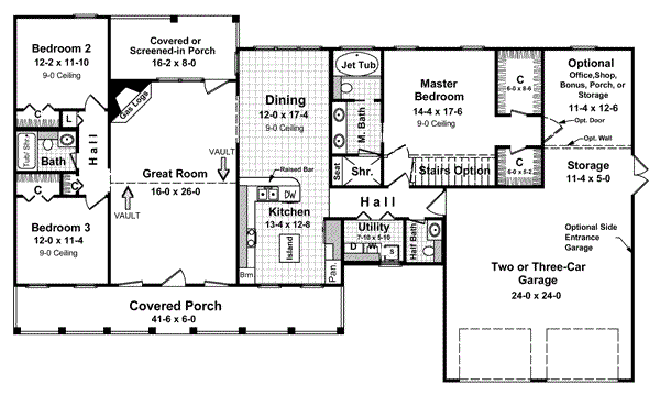
    Main Floor Plan: 2-168
  • Bonus Floor

    Reverse

    Clicking the Reverse button does not mean you are ordering your plan reversed. It is for visualization purposes only. You may reverse the plan by ordering under “Optional Add-ons”.

    Bonus Floor Plan: 2-168

House Plan Highlights

  • This home features a beautiful southern styling and the most-popular split-bedroom floor plan layout.
  • The expansive and well-appointed master suite includes large his and her walk-in closets, an oversized jet tub, separate shower, compartmentalized toilet and dual vanities.
  • The optional bonus room, over the garage, serves well as a fourth bedroom, game room, or much-needed home office.
  • Enjoy the convenience of the optional office/lounge/bonus room located off the master suite.
  • The large kitchen includes the very popular oversized island and features a raised bar conversations with close friends and family.
  • Enjoy the view from your great room as your gas log fireplace keeps you and your family warm on those cold winter nights.
  • This home includes the features that your family wants!

This floor plan is found in our Southern house plans section

Full Specs and Features

icon Total Living Area

  • Main floor: 1799
  • Bonus: 194
  • Porches: 377
  • Total Finished Sq. Ft.: 1799

icon Beds/Baths

  • Bedrooms: 3
  • Full Baths: 2
  • Half Baths: 1

icon Garage

  • Garage: 543
  • Garage Stalls: 2

icon Levels

  • 1 story

Dimension

  • Width: 78' 0"
  • Depth: 46' 0"
  • Height: 25' 7"

Roof slope

  • 10:12 (primary)
  • 12:12 (secondary)

Walls (exterior)

  • 2"x4"

Ceiling heights

  • 9' (Main)

Foundation Options

  • Crawlspace Standard With Plan
  • Slab Standard With Plan

How Much Will It Cost To Build?

Wondering what it will actually cost to bring this home to life? Get an instant, customized estimate based on your chosen plan and location.

GET MY COST TO BUILD ESTIMATE

Modify This Plan

"Need Content here about modifying your plan"

Customize This Plan

House Plan Features

Split bedrooms
Island Eating bar
Bonus room Great room Open concept floor plan No formal living/dining Unfinished/future space
Covered front porch Covered rear porch Screened porch/sunroom
Vaulted/Volume/Dramatic ceilings Photos Available

Reviews

How Much Will It Cost To Build?

Wondering what it will actually cost to bring this home to life? Get an instant, customized estimate based on your chosen plan and location.

GET MY COST TO BUILD ESTIMATE

Modify This Plan

Need changes to the layout or features? Our team can modify any plan to match your vision.

Customize This Plan

House Plan Features

Split bedrooms
Island Eating bar
Bonus room Great room Open concept floor plan No formal living/dining Unfinished/future space
Covered front porch Covered rear porch Screened porch/sunroom
Vaulted/Volume/Dramatic ceilings Photos Available

Need Some Quick Tips Or Advice?

We want to help you design the house of your dreams as best as we can. If you can't find the answers you're looking for here, get in touch with our licensed architect or a designer!