Southern House Plans - 3 Bed, 2 Bath, 2021 Sq Ft | Plan 2-215 | Monster House Plans

New plans now available on

dreambook-head-logo See all available plans
SHARE ON

All plans are copyrighted by the individual designer.

Photographs may reflect custom changes that were not included in the original design.

3 Bedroom, 2 Bath Southern House Plan #2-215

Plan Purchase Options

Price: $0

Please uncheck first "Purchase MML without any plan package" under MONSTER MATERIAL LIST

Optional Add-Ons
guaranted-label.png

Best Price Guarantee

*Payment Plans Now
Available Through

img See if you qualify

Floor Plans

What's included?
  • Main Floor

    Reverse

    Clicking the Reverse button does not mean you are ordering your plan reversed. It is for visualization purposes only. You may reverse the plan by ordering under “Optional Add-ons”.

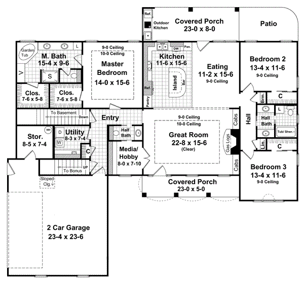
    Main Floor Plan: 2-215
  • Bonus Floor

    Reverse

    Clicking the Reverse button does not mean you are ordering your plan reversed. It is for visualization purposes only. You may reverse the plan by ordering under “Optional Add-ons”.

    Bonus Floor Plan: 2-215

House Plan Highlights

  • This inviting home has southern Country styling with upscale features.
  • The front and rear covered porches add plenty of usable outdoor living space, and include that much-requested outdoor kitchen.
  • Expansive great room includes a beautiful trayed ceiling and features built-in cabinets and a gas fireplace.
  • The spacious kitchen features an oversized island with a large eating bar and breakfast area.
  • The hall bath is equipped with dual lavatories for convenience.
  • The master bedroom has a raised ceiling and opens into the well-equipped bath with dual lavatories, oversized corner jet tub, and large his and her walk-in closets.
  • There is a storage area off the garage for projects and storage.
  • The media/hobby space could be used as a home office, dining room, or playroom.
  • There is also a full basement that could be used for additional storage or future expansion.
  • This is a very flexible home with plenty of options to choose from.
  • Make this your family's next home!

This floor plan is found in our Southern house plans section

Full Specs and Features

icon Total Living Area

  • Main floor: 2021
  • Bonus: 354
  • Porches: 299
  • Total Finished Sq. Ft.: 2021

icon Beds/Baths

  • Bedrooms: 3
  • Full Baths: 2
  • Half Baths: 1

icon Garage

  • Garage: 787
  • Garage Stalls: 2

icon Levels

  • 1 story

Dimension

  • Width: 69' 0"
  • Depth: 63' 10"
  • Height: 22' 5"

Roof slope

  • 8:12 (primary)
  • 12:12 (secondary)

Walls (exterior)

  • 2"x4"

Ceiling heights

  • 9' (Main)

Foundation Options

  • Basement Standard With Plan

Frequently Asked Questions About This Plan

  • My wife and I are in love with this plan but we need some information before deciding the house is for us. We would like a full basement but the details on the website give us no information about the size/shape. Are those details available before purchasing the house plan? That would be a determining factor for our family.

    The basement comes as unfinished space and is the same size and shape as the main floor, not including the garage or porches.

How Much Will It Cost To Build?

Wondering what it will actually cost to bring this home to life? Get an instant, customized estimate based on your chosen plan and location.

GET MY COST TO BUILD ESTIMATE

Modify This Plan

"Need Content here about modifying your plan"

Customize This Plan

House Plan Features

Suited for corner lots
Split bedrooms
Island Eating bar
Bonus room Hobby / rec-room Great room Media room Open concept floor plan Den / office / computer Unfinished/future space
Vaulted/Volume/Dramatic ceilings Photos Available
Side-entry garage

Reviews

How Much Will It Cost To Build?

Wondering what it will actually cost to bring this home to life? Get an instant, customized estimate based on your chosen plan and location.

GET MY COST TO BUILD ESTIMATE

Modify This Plan

Need changes to the layout or features? Our team can modify any plan to match your vision.

Customize This Plan

House Plan Features

Suited for corner lots
Split bedrooms
Island Eating bar
Bonus room Hobby / rec-room Great room Media room Open concept floor plan Den / office / computer Unfinished/future space
Vaulted/Volume/Dramatic ceilings Photos Available
Side-entry garage

Need Some Quick Tips Or Advice?

We want to help you design the house of your dreams as best as we can. If you can't find the answers you're looking for here, get in touch with our licensed architect or a designer!