Southern House Plans - 3 Bed, 2 Bath, 2117 Sq Ft | Plan 2-398 | Monster House Plans

New plans now available on

dreambook-head-logo See all available plans
SHARE ON

All plans are copyrighted by the individual designer.

Photographs may reflect custom changes that were not included in the original design.

3 Bedroom, 2 Bath Southern House Plan #2-398

Plan Purchase Options

Price: $0

Please uncheck first "Purchase MML without any plan package" under MONSTER MATERIAL LIST

Optional Add-Ons
guaranted-label.png

Best Price Guarantee

*Payment Plans Now
Available Through

img See if you qualify

Floor Plans

What's included?
  • Main Floor

    Reverse

    Clicking the Reverse button does not mean you are ordering your plan reversed. It is for visualization purposes only. You may reverse the plan by ordering under “Optional Add-ons”.

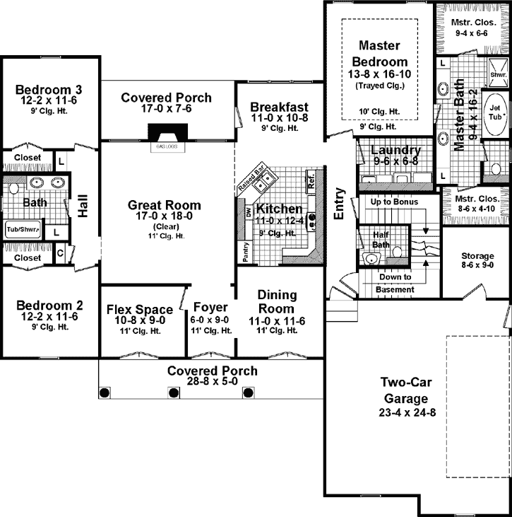
    Main Floor Plan: 2-398
  • Bonus Floor

    Reverse

    Clicking the Reverse button does not mean you are ordering your plan reversed. It is for visualization purposes only. You may reverse the plan by ordering under “Optional Add-ons”.

    Bonus Floor Plan: 2-398

Rear/Alternate Elevations

  • Rear Elevation

    Reverse

    Clicking the Reverse button does not mean you are ordering your plan reversed. It is for visualization purposes only. You may reverse the plan by ordering under “Optional Add-ons”.

    Rear Elevation Plan: 2-398

House Plan Highlights

  • Looking for the plan that has it all? Then look no further.
  • This home is packed with all the features that you've always wanted, all around 2100 s.f.
  • A foyer, formal dining room, flex space, and half bath are all extras that you would expect to find in a much larger home.
  • The great room includes 11 ft. ceilings and a gas log fireplace.
  • The kitchen is well-equipped and is located within close proximity to the breakfast area, dining room, and garage entrance.
  • The master suite includes a trayed ceiling, dual lavatories, compartmented toilet, whirlpool tub, separate shower, and his and hers closets.
  • Each of the other bedrooms also feature individual walk-in closets and share a bath with separate sinks.
  • The front and rear porches provide perfect outdoor living space.
  • The bonus room is also a great place for a playroom / gameroom and even has space for a future bath.
  • The many available features and flexibility of this home make it the perfect choice for you and your family.

This floor plan is found in our Southern house plans section

Full Specs and Features

icon Total Living Area

  • Main floor: 2117
  • Bonus: 402
  • Porches: 250
  • Total Finished Sq. Ft.: 2117

icon Beds/Baths

  • Bedrooms: 3
  • Full Baths: 2
  • Half Baths: 1

icon Garage

  • Garage: 628
  • Garage Stalls: 3

icon Levels

  • 1 story

Dimension

  • Width: 65' 2"
  • Depth: 65' 8"
  • Height: 24' 5"

Roof slope

  • 8:12 (primary)
  • 14:12 (secondary)

Walls (exterior)

  • 2"x4"

Ceiling heights

  • 9' (Main)

Exterior Finish

  • Brick

Roof Framing

  • Stick Frame

Foundation Options

  • Basement Standard With Plan

How Much Will It Cost To Build?

Wondering what it will actually cost to bring this home to life? Get an instant, customized estimate based on your chosen plan and location.

GET MY COST TO BUILD ESTIMATE

Modify This Plan

"Need Content here about modifying your plan"

Customize This Plan

House Plan Features

Suited for corner lots
Split bedrooms
Eating bar Nook / breakfast
Bonus room Great room Formal dining room Unfinished/future space Flex Space
Covered front porch Covered rear porch
Side-entry garage

Reviews

How Much Will It Cost To Build?

Wondering what it will actually cost to bring this home to life? Get an instant, customized estimate based on your chosen plan and location.

GET MY COST TO BUILD ESTIMATE

Modify This Plan

Need changes to the layout or features? Our team can modify any plan to match your vision.

Customize This Plan

House Plan Features

Suited for corner lots
Split bedrooms
Eating bar Nook / breakfast
Bonus room Great room Formal dining room Unfinished/future space Flex Space
Covered front porch Covered rear porch
Side-entry garage

Need Some Quick Tips Or Advice?

We want to help you design the house of your dreams as best as we can. If you can't find the answers you're looking for here, get in touch with our licensed architect or a designer!