Traditional House Plans - 4 Bed, 3 Bath, 1748 Sq Ft | Plan 106-680 | Monster House Plans

New plans now available on

dreambook-head-logo See all available plans
SHARE ON

All plans are copyrighted by the individual designer.

Photographs may reflect custom changes that were not included in the original design.

Design Comments

Not available for use in North Carolina

4 Bedroom, 3 Bath Traditional House Plan #106-680

Plan Purchase Options

Price: $0

Please uncheck first "Purchase MML without any plan package" under MONSTER MATERIAL LIST

Monster Material List
Optional Add-Ons
guaranted-label.png

Best Price Guarantee

*Payment Plans Now
Available Through

img See if you qualify

Floor Plans

What's included?
  • Main Floor

    Reverse

    Clicking the Reverse button does not mean you are ordering your plan reversed. It is for visualization purposes only. You may reverse the plan by ordering under “Optional Add-ons”.

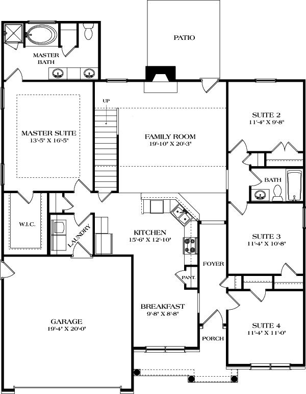
    Main Floor Plan: 106-680
  • Bonus Floor

    Reverse

    Clicking the Reverse button does not mean you are ordering your plan reversed. It is for visualization purposes only. You may reverse the plan by ordering under “Optional Add-ons”.

    Bonus Floor Plan: 106-680

House Plan Highlights

With a centrally located open living area providing an expansive feel, this family efficient split bedroom home plan offers "large living" within a smaller footprint. Versatility is also provided by leaving Suite 4 open to the Foyer & using it as a Dining Room or Office. The Bonus Room has it's own Bath & Closet that could be used as a Game Room/Theater, or as another Bedroom. Exterior shown with optional side entry. (Specify when ordering).

This floor plan is found in our Traditional house plans section

Full Specs and Features

icon Total Living Area

  • Main floor: 1748
  • Bonus: 459
  • Total Finished Sq. Ft.: 1748

icon Beds/Baths

  • Bedrooms: 4
  • Full Baths: 3

icon Garage

  • Garage: 403
  • Garage Stalls: 2

icon Levels

  • 1 story

Dimension

  • Width: 46' 0"
  • Depth: 55' 11"

Walls (exterior)

  • 2"x4"

Ceiling heights

  • 9' (Main)

Foundation Options

  • Crawlspace Standard With Plan
  • Slab Standard With Plan

How Much Will It Cost To Build?

Wondering what it will actually cost to bring this home to life? Get an instant, customized estimate based on your chosen plan and location.

GET MY COST TO BUILD ESTIMATE

Modify This Plan

"Need Content here about modifying your plan"

Customize This Plan

House Plan Features

Suited for a narrow lot
Split bedrooms
Eating bar Nook / breakfast
Bonus room Family room Open concept floor plan No formal living/dining Unfinished/future space

Reviews

How Much Will It Cost To Build?

Wondering what it will actually cost to bring this home to life? Get an instant, customized estimate based on your chosen plan and location.

GET MY COST TO BUILD ESTIMATE

Modify This Plan

Need changes to the layout or features? Our team can modify any plan to match your vision.

Customize This Plan

House Plan Features

Suited for a narrow lot
Split bedrooms
Eating bar Nook / breakfast
Bonus room Family room Open concept floor plan No formal living/dining Unfinished/future space

Need Some Quick Tips Or Advice?

We want to help you design the house of your dreams as best as we can. If you can't find the answers you're looking for here, get in touch with our licensed architect or a designer!