Traditional House Plans - 3 Bed, 2 Bath, 1948 Sq Ft | Plan 23-517 | Monster House Plans

New plans now available on

dreambook-head-logo See all available plans
SHARE ON

All plans are copyrighted by the individual designer.

Photographs may reflect custom changes that were not included in the original design.

3 Bedroom, 2 Bath Traditional House Plan #23-517

Plan Purchase Options

Price: $0

Please uncheck first "Purchase MML without any plan package" under MONSTER MATERIAL LIST

Monster Material List
Optional Add-Ons
guaranted-label.png

Best Price Guarantee

*Payment Plans Now
Available Through

img See if you qualify

Floor Plans

What's included?
  • Main Floor

    Reverse

    Clicking the Reverse button does not mean you are ordering your plan reversed. It is for visualization purposes only. You may reverse the plan by ordering under “Optional Add-ons”.

    Main Floor Plan: 23-517
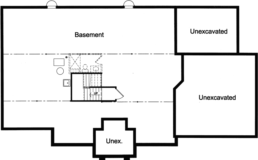
  • Lower Floor

    Reverse

    Clicking the Reverse button does not mean you are ordering your plan reversed. It is for visualization purposes only. You may reverse the plan by ordering under “Optional Add-ons”.

    Lower Floor Plan: 23-517

Rear/Alternate Elevations

  • Rear Elevation

    Reverse

    Clicking the Reverse button does not mean you are ordering your plan reversed. It is for visualization purposes only. You may reverse the plan by ordering under “Optional Add-ons”.

    Rear Elevation Plan: 23-517

House Plan Highlights

ul liThe matching front gables and double door entry create a fanciful exterior to this lovely one level home. li li The interior is surprisingly contemporary with the open Great Room Dining and Kitchen. A beautiful island defines the areas and creates a central gathering spot. li li The Dining area enjoys a view to the covered porch rear yard and the gas fireplace. li li An 11 ceiling tops the Great Room. li li A Master Bedroom suite showcases a luxurious retreat enjoying a double bowl vanity and shower enclosure spacious walk-in closet and raised center ceiling. li li A full basement included with this plan offers storage or additional square footage if needed. li ul

This floor plan is found in our Traditional house plans section

Full Specs and Features

icon Total Living Area

  • Main floor: 1948
  • Basement: 1948
  • Porches: 244
  • Total Finished Sq. Ft.: 1948

icon Beds/Baths

  • Bedrooms: 3
  • Full Baths: 2

icon Garage

  • Garage: 529
  • Garage Stalls: 2

icon Levels

  • 1 story

Dimension

  • Width: 74' 4"
  • Depth: 40' 2"
  • Height: 24' 2"

Roof slope

  • 8:12 (primary)
  • 12:12 (secondary)

Walls (exterior)

  • 2"x4"

Ceiling heights

  • 9' (Main)

Exterior Finish

  • Brick

Roof Framing

  • Truss

Foundation Options

  • Basement Standard With Plan

How Much Will It Cost To Build?

Wondering what it will actually cost to bring this home to life? Get an instant, customized estimate based on your chosen plan and location.

GET MY COST TO BUILD ESTIMATE

Modify This Plan

"Need Content here about modifying your plan"

Customize This Plan

House Plan Features

Island Eating bar
Great room Open concept floor plan No formal living/dining Unfinished/future space
Covered rear porch
ML Model Available

Reviews

How Much Will It Cost To Build?

Wondering what it will actually cost to bring this home to life? Get an instant, customized estimate based on your chosen plan and location.

GET MY COST TO BUILD ESTIMATE

Modify This Plan

Need changes to the layout or features? Our team can modify any plan to match your vision.

Customize This Plan

House Plan Features

Island Eating bar
Great room Open concept floor plan No formal living/dining Unfinished/future space
Covered rear porch
ML Model Available

Need Some Quick Tips Or Advice?

We want to help you design the house of your dreams as best as we can. If you can't find the answers you're looking for here, get in touch with our licensed architect or a designer!