Traditional House Plans - 3 Bed, 3 Bath, 2218 Sq Ft | Plan 2-232 | Monster House Plans

New plans now available on

dreambook-head-logo See all available plans
  • MEMORIAL DAY SALE! - 15% OFF Most Plans

    Some exceptions apply. Prices as marked.

SHARE ON

All plans are copyrighted by the individual designer.

Photographs may reflect custom changes that were not included in the original design.

3 Bedroom, 3 Bath Traditional House Plan #2-232

Plan Purchase Options

Price: $0

Please uncheck first "Purchase MML without any plan package" under MONSTER MATERIAL LIST

Optional Add-Ons
guaranted-label.png

Best Price Guarantee

*Payment Plans Now
Available Through

img See if you qualify

Floor Plans

What's included?
  • Main Floor

    Reverse

    Clicking the Reverse button does not mean you are ordering your plan reversed. It is for visualization purposes only. You may reverse the plan by ordering under “Optional Add-ons”.

    Main Floor Plan: 2-232
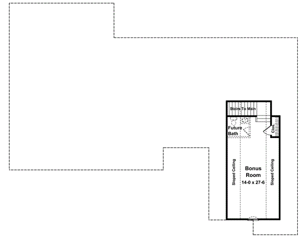
  • Bonus Floor

    Reverse

    Clicking the Reverse button does not mean you are ordering your plan reversed. It is for visualization purposes only. You may reverse the plan by ordering under “Optional Add-ons”.

    Bonus Floor Plan: 2-232

Rear/Alternate Elevations

  • Rear Elevation

    Reverse

    Clicking the Reverse button does not mean you are ordering your plan reversed. It is for visualization purposes only. You may reverse the plan by ordering under “Optional Add-ons”.

    Rear Elevation Plan: 2-232

House Plan Highlights

What style! What features! This home features a 3 bedroom, split-bedroom/open floor plan design with the popular bonus room over garage. The design also includes many of the "most requested" home features such as expansive master suite with a vaulted ceiling and sitting area, large his and her walk-in closets, oversized jet tub, and 4' x 4' shower. The fully-appointed kitchen area includes a large island, raised-bar, easy-access to the "flex" space, large dining area, and well-placed laundry. The 2-bedroom wing functions well with oversized bedrooms (each with their own bath), large walk-in closets, and easy access to a centrally-located media room. The oversized garage easily accommodates large vehicles and includes both open and closed storage. A full basement also provides great space for storage. A wonderfully flexible house plan!

This floor plan is found in our Traditional house plans section

Full Specs and Features

icon Total Living Area

  • Main floor: 2218
  • Bonus: 458
  • Porches: 353
  • Total Finished Sq. Ft.: 2218

icon Beds/Baths

  • Bedrooms: 3
  • Full Baths: 3
  • Half Baths: 1

icon Garage

  • Garage: 774
  • Garage Stalls: 2

icon Levels

  • 1 story

Dimension

  • Width: 78' 0"
  • Depth: 62' 6"
  • Height: 24' 10"

Roof slope

  • 10:12 (primary)
  • 12:12 (secondary)

Walls (exterior)

  • 2"x4"

Ceiling heights

  • 9' (Main)

Foundation Options

  • Basement Standard With Plan

How Much Will It Cost To Build?

Wondering what it will actually cost to bring this home to life? Get an instant, customized estimate based on your chosen plan and location.

GET MY COST TO BUILD ESTIMATE

Modify This Plan

"Need Content here about modifying your plan"

Customize This Plan

House Plan Features

Suited for corner lots
Split bedrooms Master sitting area/Nursery
Island Eating bar
Great room Open concept floor plan No formal living/dining Den / office / computer Flex Space
Covered front porch Covered rear porch
Vaulted/Volume/Dramatic ceilings
Side-entry garage

Reviews

How Much Will It Cost To Build?

Wondering what it will actually cost to bring this home to life? Get an instant, customized estimate based on your chosen plan and location.

GET MY COST TO BUILD ESTIMATE

Modify This Plan

Need changes to the layout or features? Our team can modify any plan to match your vision.

Customize This Plan

House Plan Features

Suited for corner lots
Split bedrooms Master sitting area/Nursery
Island Eating bar
Great room Open concept floor plan No formal living/dining Den / office / computer Flex Space
Covered front porch Covered rear porch
Vaulted/Volume/Dramatic ceilings
Side-entry garage

Need Some Quick Tips Or Advice?

We want to help you design the house of your dreams as best as we can. If you can't find the answers you're looking for here, get in touch with our licensed architect or a designer!