Traditional House Plans - 3 Bed, 2 Bath, 2341 Sq Ft | Plan 23-265 | Monster House Plans

New plans now available on

dreambook-head-logo See all available plans
SHARE ON

All plans are copyrighted by the individual designer.

Photographs may reflect custom changes that were not included in the original design.

3 Bedroom, 2 Bath Traditional House Plan #23-265

Plan Purchase Options

Price: $0

Please uncheck first "Purchase MML without any plan package" under MONSTER MATERIAL LIST

Monster Material List
Optional Add-Ons
guaranted-label.png

Best Price Guarantee

*Payment Plans Now
Available Through

img See if you qualify

Floor Plans

What's included?
  • Main Floor

    Reverse

    Clicking the Reverse button does not mean you are ordering your plan reversed. It is for visualization purposes only. You may reverse the plan by ordering under “Optional Add-ons”.

    Main Floor Plan: 23-265
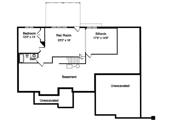
  • Lower Floor

    Reverse

    Clicking the Reverse button does not mean you are ordering your plan reversed. It is for visualization purposes only. You may reverse the plan by ordering under “Optional Add-ons”.

    Lower Floor Plan: 23-265

House Plan Highlights

A great room with 12' ceiling height informal dining and a kitchen with snack bar combine to form the family activity center on this beautiful one level home. A formal dining room and library compliment the entry and the brick and stone exterior showcase a spectacular curb appeal. Split bedrooms provide privacy to the master bedroom suite while a luxurious bath pampers the homeowner. A full basement with walk7#45out to the rear offers additional space that can be finished for a fourth bedroom bath and recreation room.

This floor plan is found in our Traditional house plans section

Full Specs and Features

icon Total Living Area

  • Main floor: 2341
  • Lower Floor: 1964
  • Total Finished Sq. Ft.: 2341

icon Beds/Baths

  • Bedrooms: 3
  • Full Baths: 2

icon Garage

  • Garage Stalls: 2

icon Levels

  • 1 story

Dimension

  • Width: 69' 2"
  • Depth: 53' 0"

Walls (exterior)

  • 2"x4"

Foundation Options

  • Walk-out basement Standard With Plan

How Much Will It Cost To Build?

Wondering what it will actually cost to bring this home to life? Get an instant, customized estimate based on your chosen plan and location.

GET MY COST TO BUILD ESTIMATE

Modify This Plan

"Need Content here about modifying your plan"

Customize This Plan

House Plan Features

Suited for corner lots Suited for a down-sloping lot
Split bedrooms
Eating bar Nook / breakfast
Hobby / rec-room Great room Library Formal dining room Unfinished/future space
Covered front porch
Vaulted/Volume/Dramatic ceilings
Side-entry garage

Reviews

How Much Will It Cost To Build?

Wondering what it will actually cost to bring this home to life? Get an instant, customized estimate based on your chosen plan and location.

GET MY COST TO BUILD ESTIMATE

Modify This Plan

Need changes to the layout or features? Our team can modify any plan to match your vision.

Customize This Plan

House Plan Features

Suited for corner lots Suited for a down-sloping lot
Split bedrooms
Eating bar Nook / breakfast
Hobby / rec-room Great room Library Formal dining room Unfinished/future space
Covered front porch
Vaulted/Volume/Dramatic ceilings
Side-entry garage

Need Some Quick Tips Or Advice?

We want to help you design the house of your dreams as best as we can. If you can't find the answers you're looking for here, get in touch with our licensed architect or a designer!