Traditional House Plans - 4 Bed, 3 Bath, 4219 Sq Ft | Plan 31-144 | Monster House Plans

New plans now available on

dreambook-head-logo See all available plans
SHARE ON

All plans are copyrighted by the individual designer.

Photographs may reflect custom changes that were not included in the original design.

Design Comments

Ceiling Heights other than standard 8':
Main Floor: 10'-0"
Great Room: 10'-0" at wall and 13'-2" at ridge.
Master: 10'-0" at wall and 13'-0" at ridge.
Basement: 9'-0" Throughout.

4 Bedroom, 3 Bath Traditional House Plan #31-144

Plan Purchase Options

Price: $0

Please uncheck first "Purchase MML without any plan package" under MONSTER MATERIAL LIST

Monster Material List
Optional Add-Ons
guaranted-label.png

Best Price Guarantee

*Payment Plans Now
Available Through

img See if you qualify

Floor Plans

What's included?
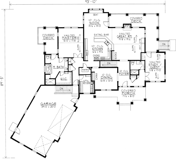
  • Main Floor

    Reverse

    Clicking the Reverse button does not mean you are ordering your plan reversed. It is for visualization purposes only. You may reverse the plan by ordering under “Optional Add-ons”.

    Main Floor Plan: 31-144
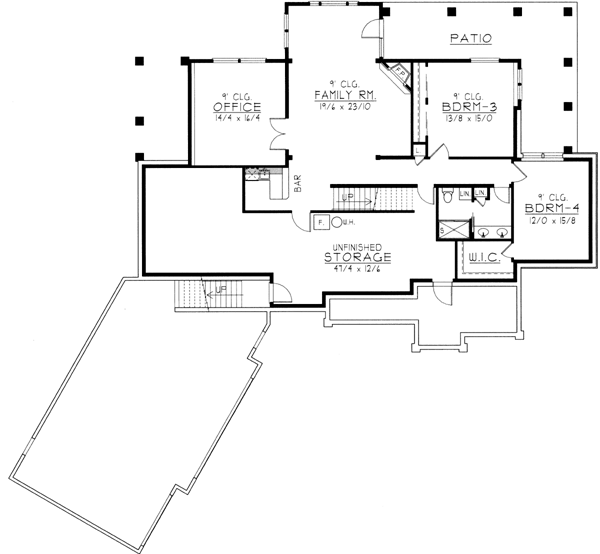
  • Lower Floor

    Reverse

    Clicking the Reverse button does not mean you are ordering your plan reversed. It is for visualization purposes only. You may reverse the plan by ordering under “Optional Add-ons”.

    Lower Floor Plan: 31-144

Rear/Alternate Elevations

  • Rear Elevation

    Reverse

    Clicking the Reverse button does not mean you are ordering your plan reversed. It is for visualization purposes only. You may reverse the plan by ordering under “Optional Add-ons”.

    Rear Elevation Plan: 31-144

House Plan Highlights

- Craftsman exterior provides an elegant look.- Open floor plan combines the huge Great Room Kitchen and Nook for informal as well as formal entertaining.- Spacious Kitchen offers an eating bar double ovens walk-in pantry.- The vaulted Master Suite includes a spacious bath with a walk-in shower soaking tub and access to a private covered Deck.- The formal Dining Room has a built-in china hutch.- A 3-Car Garage includes another stairway to the Basement.- The covered Deck is accessed from both the Nook and Study.- The Basement completes this beautiful home offering a huge Family Room 2 Bedrooms and Office a Bath and an enormous amount of Storage.

This floor plan is found in our Traditional house plans section

Full Specs and Features

icon Total Living Area

  • Main floor: 2500
  • Lower Floor: 1719
  • Basement: 752
  • Porches: 1069
  • Total Finished Sq. Ft.: 4219

icon Beds/Baths

  • Bedrooms: 4
  • Full Baths: 3

icon Garage

  • Garage: 208
  • Garage Stalls: 3

icon Levels

  • 1 story

Dimension

  • Width: 93' 10"
  • Depth: 89' 5"
  • Height: 24' 0"

Roof slope

  • 8:12 (primary)
  • 4:12 (secondary)

Walls (exterior)

  • 2"x6"

Ceiling heights

  • 10' (Main)

Foundation Options

  • Basement $275
  • Walk-out basement Standard With Plan
  • Crawlspace $275
  • Slab $275

How Much Will It Cost To Build?

Wondering what it will actually cost to bring this home to life? Get an instant, customized estimate based on your chosen plan and location.

GET MY COST TO BUILD ESTIMATE

Modify This Plan

"Need Content here about modifying your plan"

Customize This Plan

House Plan Features

Suited for a back view Suited for a down-sloping lot
Guest suite Split bedrooms
Walk-in pantry Eating bar Nook / breakfast
Family room Great room Formal dining room Den / office / computer
Covered front porch Covered rear porch
Vaulted/Volume/Dramatic ceilings
Oversized garage (3+) Side-entry garage

Reviews

How Much Will It Cost To Build?

Wondering what it will actually cost to bring this home to life? Get an instant, customized estimate based on your chosen plan and location.

GET MY COST TO BUILD ESTIMATE

Modify This Plan

Need changes to the layout or features? Our team can modify any plan to match your vision.

Customize This Plan

House Plan Features

Suited for a back view Suited for a down-sloping lot
Guest suite Split bedrooms
Walk-in pantry Eating bar Nook / breakfast
Family room Great room Formal dining room Den / office / computer
Covered front porch Covered rear porch
Vaulted/Volume/Dramatic ceilings
Oversized garage (3+) Side-entry garage

Need Some Quick Tips Or Advice?

We want to help you design the house of your dreams as best as we can. If you can't find the answers you're looking for here, get in touch with our licensed architect or a designer!