Cottage House Plan - 3 Bedrooms, 2 Bath, 1780 Sq Ft Plan 58-147

New plans now available on

dreambook-head-logo See all available plans
  • HALLOWEEN SALE - 15% OFF

SHARE ON

All plans are copyrighted by the individual designer.

Photographs may reflect custom changes that were not included in the original design.

3 Bedroom, 2 Bath Cottage House Plan #58-147

Plan Purchase Options

Price: $0

Please uncheck first "Purchase MML without any plan package" under MONSTER MATERIAL LIST

Monster Material List
Optional Add-Ons
guaranted-label.png

Best Price Guarantee

*Payment Plans Now
Available Through

img See if you qualify

Floor Plans

What's included?
  • Main Floor

    Reverse

    Clicking the Reverse button does not mean you are ordering your plan reversed. It is for visualization purposes only. You may reverse the plan by ordering under “Optional Add-ons”.

    Main Floor Plan: 58-147
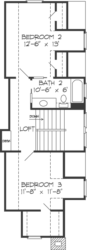
  • Upper/Second Floor

    Reverse

    Clicking the Reverse button does not mean you are ordering your plan reversed. It is for visualization purposes only. You may reverse the plan by ordering under “Optional Add-ons”.

    Upper/Second Floor Plan: 58-147

Rear/Alternate Elevations

  • Rear Elevation

    Reverse

    Clicking the Reverse button does not mean you are ordering your plan reversed. It is for visualization purposes only. You may reverse the plan by ordering under “Optional Add-ons”.

    Rear Elevation Plan: 58-147

House Plan Highlights

Corner windows flood the all-purpose dining room with light, while the living room hosts a fabulous brick fireplace.
The huge kitchen wraps to a built-in desk and pantry; nearby, the rear porch includes a storage closet perfect for gardening tools.
The main-floor master bedroom boasts two walk-in closets and connects to the full bath.
Upstairs bedrooms, each with a charming dormer, flank a nifty loft with a built-in desk.

This floor plan is found in our Cottage house plans section

Full Specs and Features

icon Total Living Area

  • Main floor: 1188
  • Upper floor: 592
  • Total Finished Sq. Ft.: 1780

icon Beds/Baths

  • Bedrooms: 3
  • Full Baths: 2

icon Garage

  • Garage Stalls: 2

icon Levels

  • 2 stories

Dimension

  • Width: 30' 0"
  • Depth: 51' 0"

Roof slope

  • 8:12 (primary)

Walls (exterior)

  • 2"x4"

Foundation Options

  • Basement Standard With Plan
  • Slab Standard With Plan

How Much Will It Cost To Build?

"Need content here about cost to build est."

Buy My Cost To Build Estimate

Modify This Plan

"Need Content here about modifying your plan"

Customize This Plan

House Plan Features

Suited for a narrow lot
Main floor Master Teen suite/Jack & Jill bath
Main Floor laundry Loft / balcony Open concept floor plan No formal living/dining
Covered rear porch

Reviews

How Much Will It Cost To Build?

Wondering what it’ll actually cost to bring your dream home to life? Get a clear, customized estimate based on your chosen plan and location.

Buy My Cost To Build Estimate

Modify This Plan

Need changes to the layout or features? Our team can modify any plan to match your vision.

Customize This Plan

House Plan Features

Suited for a narrow lot
Main floor Master Teen suite/Jack & Jill bath
Main Floor laundry Loft / balcony Open concept floor plan No formal living/dining
Covered rear porch

Need Some Quick Tips Or Advice?

We want to help you design the house of your dreams as best as we can. If you can't find the answers you're looking for here, get in touch with our licensed architect or a designer!