Farm House Plans - 3 Bed, 2 Bath, 2320 Sq Ft | Plan 58-230 | Monster House Plans

New plans now available on

dreambook-head-logo See all available plans
  • MEMORIAL DAY SALE! - 15% OFF Most Plans

    Some exceptions apply. Prices as marked.

House Plans > Farm Style > Plan 58-230

SHARE ON

All plans are copyrighted by the individual designer.

Photographs may reflect custom changes that were not included in the original design.

3 Bedroom, 2 Bath Farm House Plan #58-230

Plan Purchase Options

Price: $0

Please uncheck first "Purchase MML without any plan package" under MONSTER MATERIAL LIST

Monster Material List
Optional Add-Ons
guaranted-label.png

Best Price Guarantee

*Payment Plans Now
Available Through

img See if you qualify

Floor Plans

What's included?
  • Main Floor

    Reverse

    Clicking the Reverse button does not mean you are ordering your plan reversed. It is for visualization purposes only. You may reverse the plan by ordering under “Optional Add-ons”.

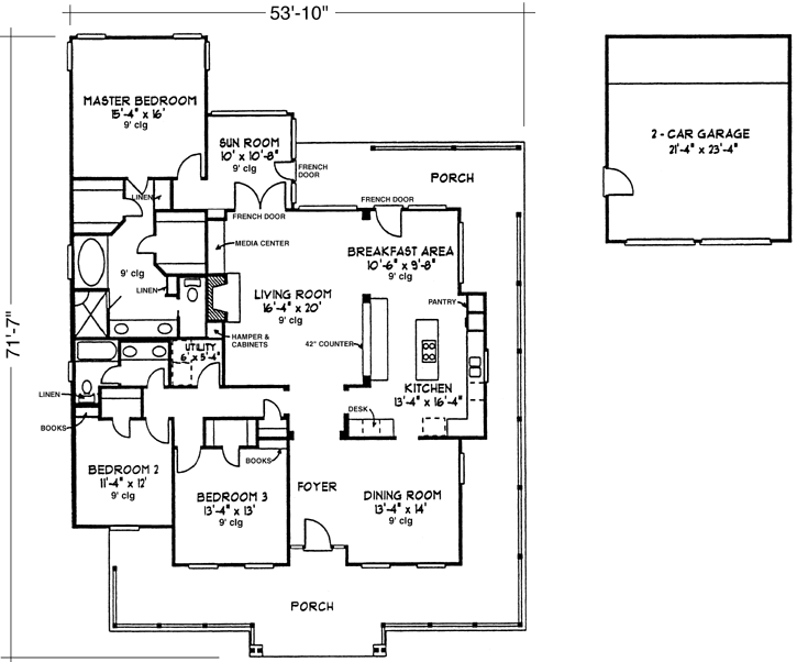
    Main Floor Plan: 58-230

House Plan Highlights

This stately country-style home features a fabulous kitchen, which boasts an island cooktop, a built-in desk, and an adjoining breakfast area.

The living room is well-situated in the center of the home, and offers a cozy fireplace and access through French doors to a delightful sun room.

The secluded master suite has two large walk-in closets and a posh private bath.

This floor plan is found in our Farm house plans section

Full Specs and Features

icon Total Living Area

  • Main floor: 2320
  • Porches: 881
  • Total Finished Sq. Ft.: 2320

icon Beds/Baths

  • Bedrooms: 3
  • Full Baths: 2

icon Garage

  • Garage: 528
  • Garage Stalls: 2

icon Levels

  • 1 story

Dimension

  • Width: 53' 10"
  • Depth: 71' 7"
  • Height: 25' 0"

Roof slope

  • 8:12 (primary)

Walls (exterior)

  • 2"x4"

Ceiling heights

  • 9' (Main)

Foundation Options

  • Slab Standard With Plan

How Much Will It Cost To Build?

Wondering what it will actually cost to bring this home to life? Get an instant, customized estimate based on your chosen plan and location.

GET MY COST TO BUILD ESTIMATE

Modify This Plan

"Need Content here about modifying your plan"

Customize This Plan

House Plan Features

Suited for a front view Suited for a back view
Split bedrooms
Island Eating bar Nook / breakfast
Great room Open concept floor plan Formal dining room
Covered front porch Covered rear porch Wrap-around porch Screened porch/sunroom Breezeway
Detached garage

Reviews

How Much Will It Cost To Build?

Wondering what it will actually cost to bring this home to life? Get an instant, customized estimate based on your chosen plan and location.

GET MY COST TO BUILD ESTIMATE

Modify This Plan

Need changes to the layout or features? Our team can modify any plan to match your vision.

Customize This Plan

House Plan Features

Suited for a front view Suited for a back view
Split bedrooms
Island Eating bar Nook / breakfast
Great room Open concept floor plan Formal dining room
Covered front porch Covered rear porch Wrap-around porch Screened porch/sunroom Breezeway
Detached garage

Need Some Quick Tips Or Advice?

We want to help you design the house of your dreams as best as we can. If you can't find the answers you're looking for here, get in touch with our licensed architect or a designer!