English Country House Plans - 4 Bed, 3 Bath, 3148 Sq Ft | Plan 58-104 | Monster House Plans

New plans now available on

dreambook-head-logo See all available plans

All plans are copyrighted by the individual designer.

Photographs may reflect custom changes that were not included in the original design.

4 Bedroom, 3 Bath English Country House Plan #58-104

Plan Purchase Options

Price: $0

Please uncheck first "Purchase MML without any plan package" under MONSTER MATERIAL LIST

Monster Material List
Optional Add-Ons
guaranted-label.png

Best Price Guarantee

*Payment Plans Now
Available Through

img See if you qualify

Floor Plans

What's included?
  • Main Floor

    Reverse

    Clicking the Reverse button does not mean you are ordering your plan reversed. It is for visualization purposes only. You may reverse the plan by ordering under “Optional Add-ons”.

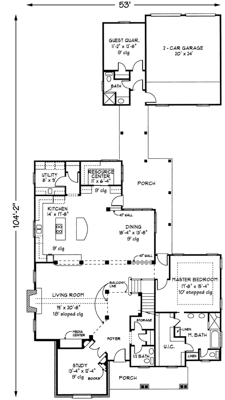
    Main Floor Plan: 58-104
  • Upper/Second Floor

    Reverse

    Clicking the Reverse button does not mean you are ordering your plan reversed. It is for visualization purposes only. You may reverse the plan by ordering under “Optional Add-ons”.

    Upper/Second Floor Plan: 58-104

House Plan Highlights

Baby Boomers love the concept of traditional neighborhood design and offer their opinions of what a TND home's floor plan should include--all of which are contained in this home:

1. Master bedroom down
2. A single dining area.
3. A standard tub in the master bath.
4. A larger shower in the master bath.
5. Detached quarters for home office or a private living space for an aging parent.
6. Separate spaces for computer use (accomplished by including a "Resource Center" and a study).

Note also the courtyard space formed by the home's footprint and the detached, two-car garage. There's room enough here for a small pool, if desired.
The home's exterior is an eclectic mix of American country and European flair.

This floor plan is found in our English Country house plans section

Full Specs and Features

icon Total Living Area

  • Main floor: 2603
  • Upper floor: 545
  • Total Finished Sq. Ft.: 3148

icon Beds/Baths

  • Bedrooms: 4
  • Full Baths: 3
  • Half Baths: 1

icon Garage

  • Garage Stalls: 2

icon Levels

  • 2 stories

Dimension

  • Width: 53' 0"
  • Depth: 104' 2"
  • Height: 26' 0"

Roof slope

  • 10:12 (primary)
  • 12:12 (secondary)

Walls (exterior)

  • 2"x4"

Foundation Options

  • Slab Standard With Plan

How Much Will It Cost To Build?

Wondering what it will actually cost to bring this home to life? Get an instant, customized estimate based on your chosen plan and location.

GET MY COST TO BUILD ESTIMATE

Modify This Plan

"Need Content here about modifying your plan"

Customize This Plan

House Plan Features

Main floor Master Guest suite In-law quarters/apartment
Island Walk-in pantry
Hobby / rec-room Great room Main Floor laundry Loft / balcony Open concept floor plan No formal living/dining Den / office / computer
Covered front porch Covered rear porch Breezeway
Vaulted/Volume/Dramatic ceilings
Detached garage Rear garage Rear-entry garage

Reviews

How Much Will It Cost To Build?

Wondering what it will actually cost to bring this home to life? Get an instant, customized estimate based on your chosen plan and location.

GET MY COST TO BUILD ESTIMATE

Modify This Plan

Need changes to the layout or features? Our team can modify any plan to match your vision.

Customize This Plan

House Plan Features

Main floor Master Guest suite In-law quarters/apartment
Island Walk-in pantry
Hobby / rec-room Great room Main Floor laundry Loft / balcony Open concept floor plan No formal living/dining Den / office / computer
Covered front porch Covered rear porch Breezeway
Vaulted/Volume/Dramatic ceilings
Detached garage Rear garage Rear-entry garage

Need Some Quick Tips Or Advice?

We want to help you design the house of your dreams as best as we can. If you can't find the answers you're looking for here, get in touch with our licensed architect or a designer!