Farm House Plans - 4 Bed, 4 Bath, 3072 Sq Ft | Plan 58-114 | Monster House Plans

New plans now available on

dreambook-head-logo See all available plans

House Plans > Farm Style > Plan 58-114

SHARE ON

All plans are copyrighted by the individual designer.

Photographs may reflect custom changes that were not included in the original design.

4 Bedroom, 4 Bath Farm House Plan #58-114

Plan Purchase Options

Price: $0

Please uncheck first "Purchase MML without any plan package" under MONSTER MATERIAL LIST

Monster Material List
Optional Add-Ons
guaranted-label.png

Best Price Guarantee

*Payment Plans Now
Available Through

img See if you qualify

Floor Plans

What's included?
  • Main Floor

    Reverse

    Clicking the Reverse button does not mean you are ordering your plan reversed. It is for visualization purposes only. You may reverse the plan by ordering under “Optional Add-ons”.

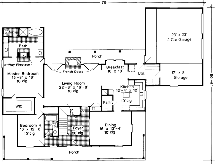
    Main Floor Plan: 58-114
  • Upper/Second Floor

    Reverse

    Clicking the Reverse button does not mean you are ordering your plan reversed. It is for visualization purposes only. You may reverse the plan by ordering under “Optional Add-ons”.

    Upper/Second Floor Plan: 58-114

Rear/Alternate Elevations

  • Rear Elevation

    Reverse

    Clicking the Reverse button does not mean you are ordering your plan reversed. It is for visualization purposes only. You may reverse the plan by ordering under “Optional Add-ons”.

    Rear Elevation Plan: 58-114

House Plan Highlights

This charming home has plenty of space for both formal and casual entertaining.
On the main floor, the huge central living room will pamper your guests with an impressive fireplace, a wet bar and two sets of French doors that expand the room to a backyard porch.
The large formal dining room hosts those special, sit-down dinners.
There's still more space in the roomy island kitchen and breakfast nook to gather for snacks and conversation.
For quiet evenings alone, the plush master suite offers pure relaxation! A romantic two-way fireplace between the bedroom and the bath serves as the focal point, yet the whirlpool garden tub is just as inviting.
The kids' recreation time can be spent in the enormous game room on the upper floor. Private baths service each of the vaulted upper-floor bedrooms.

This floor plan is found in our Farm house plans section

Full Specs and Features

icon Total Living Area

  • Main floor: 1995
  • Upper floor: 1077
  • Total Finished Sq. Ft.: 3072

icon Beds/Baths

  • Bedrooms: 4
  • Full Baths: 4

icon Garage

  • Garage Stalls: 2

icon Levels

  • 2 stories

Dimension

  • Width: 79' 0"
  • Depth: 60' 6"
  • Height: 29' 0"

Roof slope

  • 10:12 (primary)

Walls (exterior)

  • 2"x4"

Foundation Options

  • Slab Standard With Plan

How Much Will It Cost To Build?

Wondering what it will actually cost to bring this home to life? Get an instant, customized estimate based on your chosen plan and location.

GET MY COST TO BUILD ESTIMATE

Modify This Plan

"Need Content here about modifying your plan"

Customize This Plan

House Plan Features

Suited for corner lots
Main floor Master Teen suite/Jack & Jill bath
Island Walk-in pantry Nook / breakfast
Family room Hobby / rec-room Main Floor laundry Formal dining room
Covered front porch Covered rear porch Wrap-around porch
Rear garage Side-entry garage

Reviews

How Much Will It Cost To Build?

Wondering what it will actually cost to bring this home to life? Get an instant, customized estimate based on your chosen plan and location.

GET MY COST TO BUILD ESTIMATE

Modify This Plan

Need changes to the layout or features? Our team can modify any plan to match your vision.

Customize This Plan

House Plan Features

Suited for corner lots
Main floor Master Teen suite/Jack & Jill bath
Island Walk-in pantry Nook / breakfast
Family room Hobby / rec-room Main Floor laundry Formal dining room
Covered front porch Covered rear porch Wrap-around porch
Rear garage Side-entry garage

Need Some Quick Tips Or Advice?

We want to help you design the house of your dreams as best as we can. If you can't find the answers you're looking for here, get in touch with our licensed architect or a designer!